Стиль этого интерьера — контемпорари: живой и современный, который постоянно меняется, сочетает в себе элементы скандинавского стиля, минимализма, эклектики. Здесь нет никаких излишеств, много света и ярких акцентов.

Место: г. Сочи, ЖК «Сочи Парк»
Объект: евродвушка 38 кв.м
Высота потолков: 2,8 м (исходная), 2,65 м (итоговая)
Кто здесь живет: молодой человек
Автор проекта: дизайнер Анна Сычева
Автор фото: Владислав Нагин
Реализация: 2025 год
Что просил заказчик
- Светлый интерьер с яркими акцентами.
- Отдельную спальню.
- Просторное рабочее место.
- Дополнительное спальное место в кухне-гостиной.
«Заказчик — молодой человек, творческий и креативный гейм-дизайнер. Много времени работает дома за компьютером. Он точно знал, что хотел видеть в своем интерьере — светлую базу и яркие акценты, — рассказывает дизайнер. — Я предложила концепцию: светлые стены, добавить желтый и черный цвета по классической пропорции 70 / 20 / 10. Черный цвет минимально, для создания определенного ритма в отделке дверных коробок, светильниках, ножках мебели, принте на постере. Хотелось в интерьере отразить характер молодого человека и его образ жизни, чтобы было комфортно не только с точки зрения эргономики, но и эмоционально».
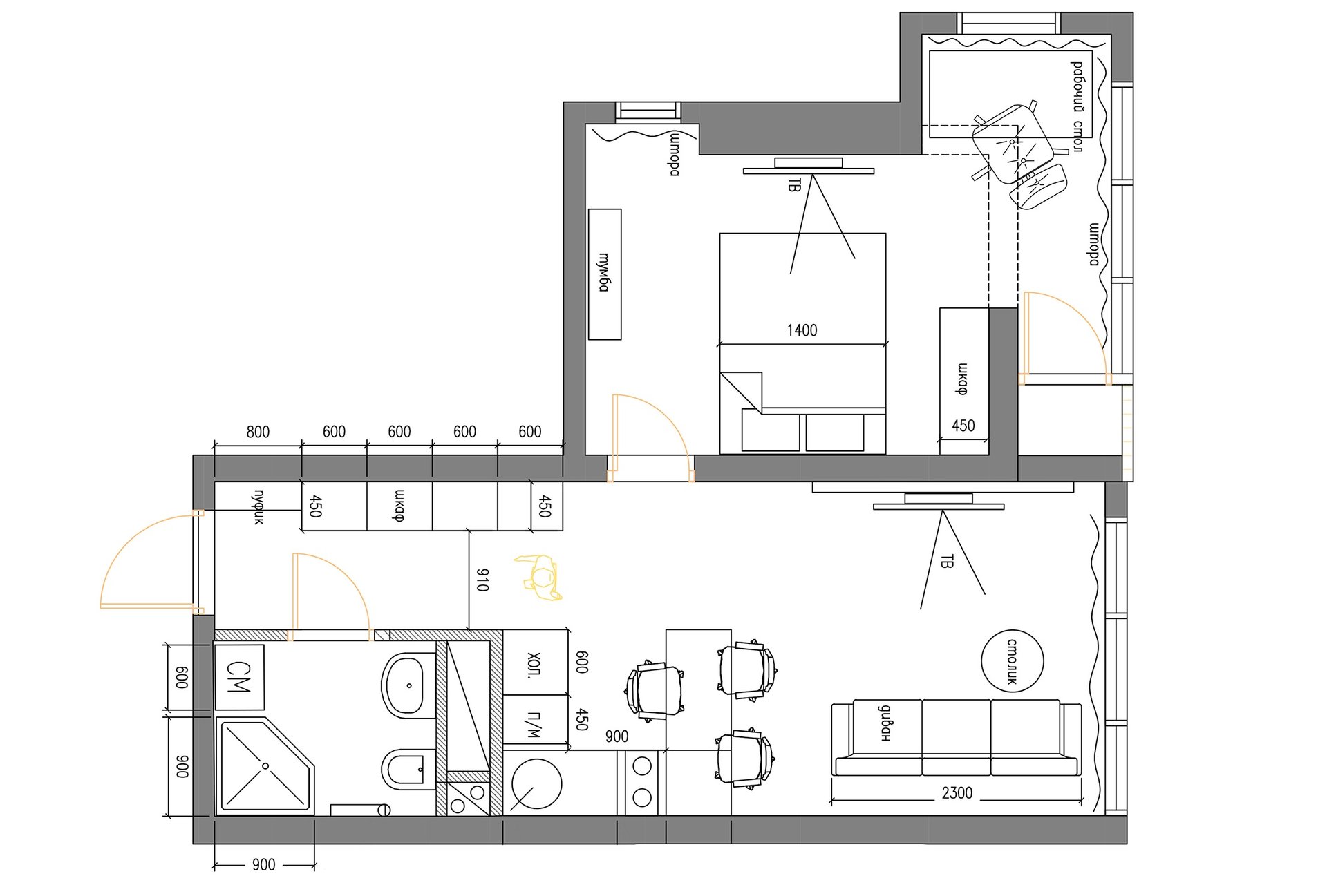
Логика планировки
Изначально это была «голая» цементная коробка с монолитной стеной между спальней и кухней, которую невозможно было перенести. С исходной планировкой ничего делать не стали, лишь сдвинули на 20 см дверной проем в санузле, чтобы разместить с одной стороны раковину, с другой — стиральную машину. Все мокрые точки оставили на своих местах.

Кухня-гостиная
На пол в кухне-гостиной уложили светлый керамогранит с серыми разводами — эффектом карвинга (имитирует природные текстуры). Для стен во всей квартире выбрали краску Lanors Mons, палитра «Времена года». В каждом помещении — свой оттенок, в кухне-гостиной цвет 46 «Дождь».
Небольшую кухню максимально оснастили техникой: установили посудомоечную машину, духовой шкаф, в верхнем шкафу встроили микроволновую печь, чтобы освободить рабочую поверхность. Верхние шкафы спланировали без антресолей, чтобы визуально увеличить высоту потолка. От полноценного обеденного стола решили отказаться, его заменяет барная стойка.

Стены в зоне отдыха задекорировали 3D-панелями, ТВ-зону украшает панно из панелей и керамогранита. Полосы на постере над диваном, торшер с тонким основанием, полоски на ковре-шкуре создают определенный ритмический узор, он придает интерьеру характер. В интерьере использовали накладную трековую систему с радиусными элементами, которая переходит со стены на потолок. Необычное решение, которое сразу привлекает внимание.
Диван Льери от divan.ru стал центральным элементом интерьера и ярким «пятном». Модель идеально подошла по габаритам и функционалу — она будет служить гостевым спальным местом. Ткань и цвет обивки выбрали онлайн, в удобном «Конструкторе диванов».
Товары бренда divan.ru
Спальня
В спальне выбор остановили на более глубоком оттенке краски для стен (цвет 96 «Серый шелк»). На полу здесь виниловый ламинат и керамогранит у окна. В помещении был монолитный ригель, который нельзя было убирать. Минус превратили в плюс — молдинг с полукруглыми элементами переходит с одной стены спальни на противоположную стену по ригелю. Идею радиусных элементов поддерживает люстра и круглое бра в виде луны.
Кровать изготовили на заказ. Нужен был определенный размер (140 см), чтобы оставить комфортный проход между ней и шкафом. Места для прикроватных тумбочек не хватило, поэтому с одной стороны поставили приставной столик Джери от divan.ru, с другой есть открытые полки шкафа — их можно использовать для телефона или книги. Шкаф тоже изготовлен на заказ, потому что нужна была нестандартная глубина (45 см вместо 60). Такая же глубина шкафов во входной зоне.
«Горчичная тумба Шелби вписалась в основную идею интерьера и по цвету, и по форме. Интерьер дополнили уютным ковром Лаунлини. Комплект постельного белья Pick&Pair Grafit, матрас, одеяло и подушки для сна тоже заказали в divan.ru. Удобно, что не только мебель, но и матрас, ковер, качественный текстиль для интерьера можно приобрести в одном месте», — говорит автор проекта.
Санузел
Автор проекта
Дизайнер Анна Сычева (@djindgerdesign, djindgerdesign@gmail.com).
Хотите опубликовать свой проект в нашем блоге?
Пишите на roomtour@divan.ru
Форматы, жанры, на каких условиях >>































