Нейтральный базовый дизайн этой квартиры разбавили элементами черного цвета, а за настроение отвечают акценты в осенних оттенках.

Место: г. Москва
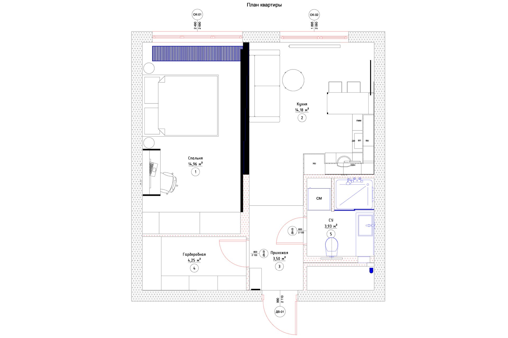
Объект: однушка 41 кв.м в новостройке
Высота потолков: 2,9 м
Автор проекта: дизайнер Нина Абасеева
Автор фото: Александр Гаврилов
Бюджет проекта: 4,2 млн рублей
Реализация: 2025 год
Что просили заказчики
- Подготовить квартиру для сдачи в долгосрочную аренду.
- Практичный и нейтральный интерьер для одного человека или пары.
- Обстановку, где с помощью декора и акцентных деталей можно легко менять настроение.
Логика планировки
На момент покупки квартира была «в бетоне». Планировка от застройщика предполагала стену между кухней и комнатой. Ее решили не возводить, спальную зону отделили раздвижной стеклянной перегородкой, чтобы можно было «играть» сценариями проживания и оставить в помещениях как можно больше «воздуха».

Зоны кухни и гостиной
Так как помещение небольшое, его решили не дробить визуально. Во всей квартире, кроме санузла, уложили единое напольное покрытие — кварц-винил. Стены покрыли светло-серой краской с матовым финишем.

Угловая кухня изготовлена на заказ. Фасады выполнены из МДФ в пленке, столешница — из акрилового камня (при появлении царапин его можно отшлифовать). Барная стойка решает функцию дополнительной рабочей поверхности и одновременно служит обеденной зоной. Над барной стойкой расположили объемные подвесы, черный и белый — основные цвета интерьера. Фартук, переходящий на стену и облицованный керамогранитом под терраццо, разбавляет монохромность кухонного гарнитура.
Диван Виенсо от производителя divan.ru в обивке из букле служит центром композиции и местом притяжения взглядов всех, кто попадает в квартиру. Понравилась обтекаемая форма и сам дизайн этой модели. Для акцентов приобрели подушки от divan.ru в цвете охра.
Товары бренда divan.ru
Спальня
«В спальне выделили рабочее место для будущего квартиросъемщика — сейчас многие работают удаленно, поэтому такое решение востребовано, — делится дизайнер. — Черный стол Эльси и рабочее кресло Клип, которое выбрали за интересную ретроформу и цвет, тоже заказали в divan.ru».
Панно в виде вьющейся ленты выполнено художницей Оксаной Холтобиной в основных цветах интерьера. Тема лент просматривается и в прихожей (вешалки над пуфом), и на подвесных светильниках над барной стойкой.

Товары бренда divan.ru
Вдоль стены напротив окна расположили встроенный распашной шкаф. В случае проживания пары у каждого будет своя половина. Открытая секция выполнена из ЛДСП Egger под шпон дерева. Из этого же материала изготовлена мебель в санузле.
От люстры в спальне отказались. Вдоль шкафа и штор установлены встроенные светильники, накладные над рабочим столом, светильники для чтения с обеих сторон от изголовья, а также декоративные бра в виде полусфер.
Прихожая
Входная дверь с зеркалом покупалась уже готовая, с боковыми вставками из светло-серого МДФ. Оттенок краски для стен подобрали под цвет накладок на двери. У входа поставили яркий пуф, над ним вешалки для верхней одежды. Напротив — полка для ключей и панно, выполненное художником Егором Щепловалиным.
На стене повесили поворотные бра. Вечером можно выключить основной свет и увидеть инсталляцию в виде направленных в разные стороны лучей. Слева от входа спроектирована гардеробная, поэтому в прихожей нет шкафов.
Санузел
Стены и пол в санузле облицевали керамогранитом под камень. Чтобы сэкономить пространство, от ванны отказались, установили душевую.
Справа от тумбы — полки для галантереи. В нише установили стиральную и сушильную машины, над ними обустроили глубокую систему хранения.
Автор проекта
Дизайнер Нина Абасеева (телеграм-канал, сайт, abanina@mail.ru, +7 926 906-10-76).
Хотите опубликовать свой проект в нашем блоге?
Пишите на roomtour@divan.ru
Форматы, жанры, на каких условиях >>




































