Эта квартира — отпускная, для летних каникул на море семейной пары с двумя детьми. Интересный факт: в реализации проекта участвовал только глава семьи, для всех остальных дизайн станет сюрпризом. Они не видели ни визуализаций, ни фотографий. Полным составом семья приедет летом на каникулы и увидит интерьер впервые. А мы заглянем в гости уже сейчас.

Место: г. Сочи, ЖК «Кислород»
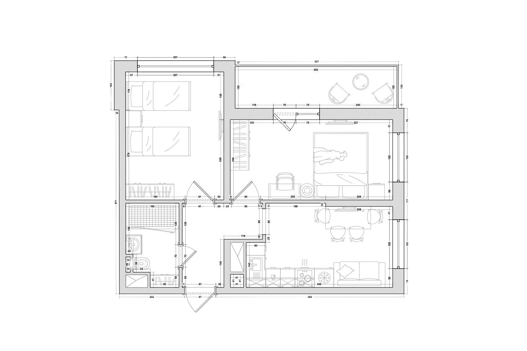
Объект: двухкомнатная квартира 44,7 кв.м
Высота потолков: 2,7 м
Автор проекта: дизайнер Ирина Ксензова
Автор фото: Максим Ксензов
Бюджет проекта: 1,2 млн рублей
Реализация: январь 2026 года
Что просил заказчик
- Подготовить квартиру для семейного отдыха летом с возможной сдачей в аренду в остальные сезоны.
- Функциональную кухню для полноценной готовки.
- Раскладной диван в кухне-гостиной в качестве дополнительного спального места.
- Две спальни: родительскую и детскую.
Логика планировки
На момент «знакомства» с дизайнером квартира была на стадии бетона.
Первая комната предполагалась как спальня, из нее сделали детскую с двумя отдельными кроватями. Вторая комната (по задумке застройщика — гостиная) превратилась в спальню-кабинет с рабочим местом. На кухне обошлись без существенных изменений.

«Колористическая база проекта — цветовая гармония прямоугольной тетрады, — рассказывает дизайнер. — Сочетание близких оттенков, где контраст достигается за счет комплементарных пар. Палитра выбрана спокойная, природная:
- основные цвета — зеленый (подтон стен) + оранжевый (подтон цвета пола);
- дополнительные — синий и белый (двери, потолок);
- точечно — черный (рамы окон), красный.
Цветовая палитра перекликается во всех комнатах, объединяя пространство единой концепцией».
Кухня-гостиная
Кухонный гарнитур при входе в комнату спроектировали углом. Конфигурацию задал простенок у двери, предусмотренный застройщиком: модульные решения не подходили по габаритам, поэтому пришлось изготавливать гарнитур на заказ.
Оттенок фасадов гарнитура AGT SUPRAMAT 3015 Macaron Green — нейтральная база. Акценты — фурнитура под золото и фартук из фигурной керамической плитки с закругленными краями. Швы цвета графит выполнены из эпоксидной затирки. Стену в обеденной зоне задекорировали рельефными панелями, которые перекликаются с изножьем стола.
Диван Филс-Мини от divan.ru — яркий акцент в помещении. Миниатюрные габариты модели, наличие механизма трансформации, сочетание цены и качества — все совпало и подошло идеально.
Товары бренда divan.ru
«Торшер с шарообразными элементами на ножке объединяет современный дизайн и легкий ретрошарм. Черно-белый абажур в горошек гармонирует с общей цветовой гаммой. Стену украшает абстрактная картина с изображением волн “Рассвет”. Она выполнена в холодных голубых и белых тонах, что создает контраст с теплым бордовым диваном. Такой прием “усложняет” интерьер и добавляет динамики», — комментирует дизайнер.
Спальня
Для декорирования стены за изголовьем кровати использовали молдинги из дюрополимера под покраску. Основной цвет интерьера — серо-зеленый, который используется для стен и текстиля. Он создает спокойную и нейтральную атмосферу, подходящую для спальни.
Для хранения на входе в комнату установили готовый модульный шкаф. Интересный элемент — ковер неправильной формы. Он придает гибкости интерьеру. Изящный декоративный бюст юноши и книжные ограничители «Ладони» делают интерьер «живым».
Товары бренда divan.ru
Детская
Дизайн детской — универсальный, без привязки к полу ребенка. Нижняя объемная декоративная часть стены служит изголовьем для двух односпальных кроватей. При необходимости их можно собрать в единую конструкцию. Верхнюю часть стены оклеили черно-белыми обоями.
«Я рада, что решилась на эксперимент с молдингами на акцентных стенах в комнатах, вживую это смотрится эффектно, стильно, свежо, — комментирует автор проекта. — Не утяжеляет интерьер, а, наоборот, дарит объем и ритм. Приятно, что это еще и довольно бюджетное декоративное решение в дизайне. Покрывала с узором в бордовых и белых тонах добавляют мягкости. Игривости добавляет круглая картина с изображением белой собаки. Фарфоровая настольная лампа мягкой обтекаемой формы цвета голубого зефира дополняет обстановку».
Прихожая
Стены на входе в квартиру покрасили в более глубокий цвет. «Он создает ощущение глубины и спокойствия, ассоциируется с морем и небом, — объясняет дизайнер. — Белые декоративные элементы в форме птиц создают акцент и добавляют динамики. Для удобства есть ярко-голубой пуф, украшенный мелким узором с птицами. Большое зеркало в черной раме визуально увеличивает пространство и делает прихожую светлее. Особое место занимает репродукция картины “Вдохновение” художницы Натальи Занчевской».
Санузел
Нишу в санузле занимает вместительный встроенный шкаф ручной работы с реечными дверцами, окрашенными в базовый цвет этого интерьера.
Автор проекта
Ирина Ксензова — автор семейного проекта PARUSA | редизайн курортной недвижимости (@ira_ksenzova, +7 981 107-98-29).
Хотите опубликовать свой проект в нашем блоге?
Пишите на roomtour@divan.ru
Форматы, жанры, на каких условиях >>












































