Этот проект демонстрирует, что жилье под сдачу может быть не просто удобным и практичным, но и создавать теплую, «живую», тактильно приятную атмосферу, в которой каждый почувствует себя дома — независимо от образа жизни или предпочтений.

Место: г. Москва, ЖК «Лосиноостровский парк»
Объект: евродвушка 31,9 кв.м
Высота потолков: 2,62 м
Автор проекта и фото: дизайнер Анастасия Струве
Бюджет проекта: 720 тысяч рублей
Реализация: 2025 год
Что просили заказчики
- Интерьер, который будет выгодно выделяться на фоне других предложений рынка аренды.
- Максимально эффективное использование ограниченной площади.
- Адаптивное пространство, которое легко трансформировать под разные сценарии использования.
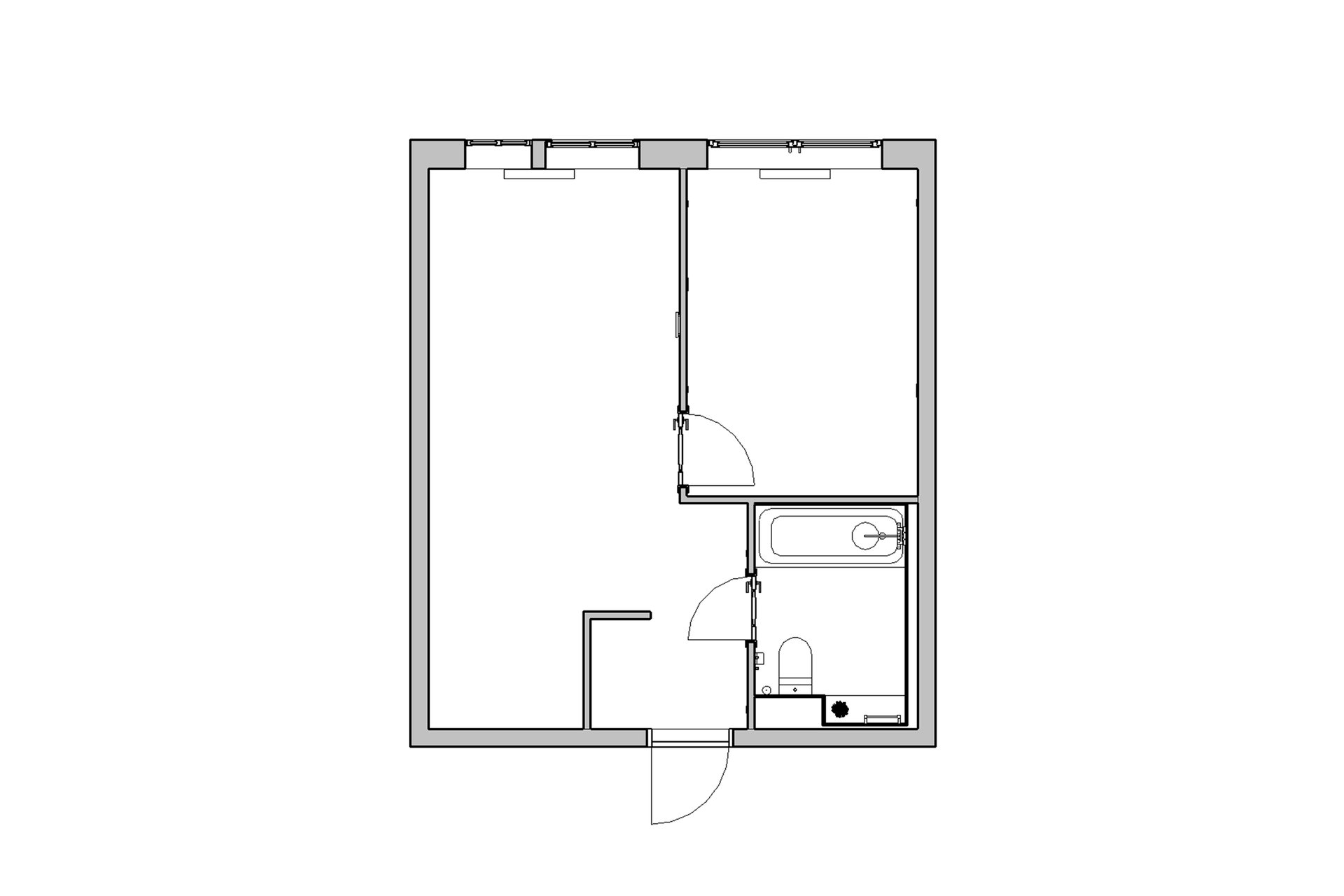
Логика планировки
Квартиру приобрели с чистовой отделкой от застройщика: стены с белыми обоями под покраску, ламинат, пластиковые плинтусы, натяжные потолки, серая плитка в санузле. «Сложность представляли натяжные потолки, — рассказывает дизайнер. — Они сильно ограничивают в перевеске света. Выход был найден — в нужных местах сделали красивые отверстия для дополнительных крючков, куда можно перевесить свет на длинных проводах». Перепланировки в квартире не было, мокрые зоны остались на своих местах.
Кухня-гостиная
Дизайн выполнен в светлой гамме, которая визуально расширяет пространство. Основные цветовые акценты: пыльный розовый, терракота, оттенки дерева. Практически всю отделку оставили от застройщика. «Часть стен мы задекорировали вагонкой, — комментирует автор проекта. — Она придает пространству тактильности и создает ощущение загородного дома. Важно то, что это именно дерево, с его неровностями, сучками, кривизной: это создает полное ощущение жизни в пространстве, а не “прилизанность” идеального нежилого помещения».
Кухонный гарнитур собрали из готовых модулей. Самая большая система хранения находится в крайнем шкафу кухни. Кажется, что там два холодильника, но это не так: слева холодильник, а справа — шкаф. Круглый стол в столовой зоне дополнили винтажными стульями в травянисто-лимонной обивке. Заказчик привез эти стулья с дачи: там они не использовались, а здесь получили новую жизнь. Несмотря на выведенные от застройщика точки для света, люстру сместили к обеденной зоне, удлинив провод и подвесив ее на крючок.
Диван Маре Мини от divan.ru играет ключевую роль в зоне гостиной. Коралловый оттенок его обивки просто невероятный. Диван приехал в квартиру первым, и заказчики сначала испугались такого розового «пятна» в пустой белой квартире. Но когда интерьер был закончен, мы выслушали массу комплиментов и восторженных отзывов о его цвете.
Товары бренда divan.ru
Зону гостиной «объединяет» большой плюшевый ковер. Обстановку дополнили небольшим удобным креслом в ретростиле и кофейным столиком, который можно переносить к дивану или креслу в зависимости от способа времяпрепровождения. Кроме подвесных светильников, в помещении есть несколько источников освещения на уровне глаз (бра, торшер) для создания приятной атмосферы вечером.
Спальня
Отделку стен в спальне оставили от застройщика. В помещении выделили зоны для сна и работы, разделив их текстильной шторой. Для основного хранения установили готовый, отдельно стоящий шкаф.
Полка Сиби от divan.ru над рабочим столом удобна в условиях ограниченного пространства. Не занимает много места, можно ставить книги, вешать наушники.
В помещении застройщиком был предусмотрен только один вывод под свет на потолке, и он попадал ровно между спальной и рабочей зоной. Посредством открытой проводки весь свет перенесли к кровати, оформив его объемными бумажными шарами. В рабочей зоне установили напольный торшер и повесили бра-прищепку.
Прихожая
Застройщик запланировал в прихожей нишу под шкаф, но в связи с ограниченным бюджетом приняли решение использовать открытые системы хранения, спрятав их за плотным тяжелым текстилем. Здесь же установили стиральную машину, протянув вывод с кухни. Трубы закрыли вагонкой на кухне, чтобы не ремонтировать стены. Хранение готовое, открытое, система поделена на две части: одежда и бытовое хранение.
Санузел
«Скучная серая плитка в санузле — один из минусов отделки от застройщика, — делится дизайнер. — Но ее удалось грамотно обыграть и достичь уюта и тепла. Винтажная тумба под раковину не только интересно смотрится, но и намного выгоднее, чем новая. Взяли старый бельевой шкаф и установили на него отдельно стоящую раковину. Тумба добавила визуального тепла серому помещению, а текстиль с бахромой поддержал тумбу. Для дополнительного хранения есть полки в нише».
Автор проекта
Дизайнер Анастасия Струве (@struve_anastasia, телеграм-канал, сайт, info@struvehome.com, +7 995 899-74-48).
Хотите опубликовать свой проект в нашем блоге?
Пишите на roomtour@divan.ru
Форматы, жанры, на каких условиях >>














































