Площадь этой квартиры всего 31 кв.м, но по функционалу она не уступает двушке: здесь есть отдельная спальня с гардеробом, видовая гостиная, полноценная кухня. Посмотрим, как удалось реализовать все пожелания заказчика.

Место: г. Москва, ЖК «Джаз»
Объект: евродвушка 31 кв.м
Высота потолков: 2,9 м
Авторы проекта: дизайнеры Юнна Лукинских и Наталья Пеле, студия инвестдизайна Yuloo Studio
Автор фото: Роман Алексеев
Бюджет проекта: 4,03 млн рублей
Реализация: 2025 год
Что просил заказчик
- Подготовить квартиру к сдаче в долгосрочную аренду.
- Выделить отдельную спальню.
- Продумать хранение, не перегружая пространство.
- Предусмотреть рабочее место.
- Спрятать инженерные элементы (щиток, коллектор).
«Это уже второй наш проект для этого заказчика: спустя год он обратился к нам по поводу новой квартиры в том же жилом комплексе — с аналогичными площадью и планировкой, — рассказывают дизайнеры. — Кстати, первый проект уже публиковали в журнале divan.ru — вот он. В первой квартире мы работали с готовой отделкой и были привязаны к готовой электрике, полу и инженерии — приходилось мириться с некоторыми компромиссами. Здесь работали с бетона, что дало определенную свободу: мы смогли исправить все, что в прошлый раз не удалось реализовать. В итоге получилась улучшенная версия той же планировки».
Идея проекта связана с оформлением лобби дома, в котором расположена квартира. Цветовая палитра: орех, кварцево-серый, черный и бежевый.
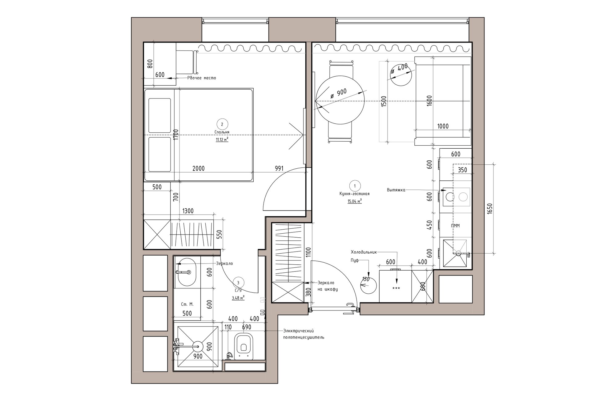
Логика планировки
Сильная сторона пространства — два панорамных окна, которые позволили организовать две полноценные изолированные комнаты. Слабые стороны: инженерные ограничения застройщика, необходимость опускать потолок из-за вентиляции, исходное расположение входа в санузел — дверь открывалась буквально у дверного коврика.
«Проект от застройщика предполагал опуск потолка на более чем 30 см по всей площади квартиры, что негативно сказывалось бы на восприятии пространства. Мы же опустили потолок лишь в строго необходимых местах (опуск затронул прихожую и санузел — в гостиной и спальне высота сохранилась полностью), сформировав ниши с подсветкой. Такой подход позволил сохранить ощущение “воздуха”».
В квартире сделали перепланировку: выделили отдельную спальню и перенесли туда вход в санузел из прихожей (в разрешенных законом пределах — мокрые зоны не трогали и не сдвигали). Это решение дало сразу несколько преимуществ:
- исчез конфликт дверей — входная дверь открывается внутрь, и при исходном расположении они буквально бились друг о друга;
- появилось место для полноценного шкафа в прихожей;
- санузел теперь находится в чистой зоне.
Кухня-гостиная
Стены и потолок во всей квартире окрашены в один цвет. На полу инженерная доска, а вместо обычных радиаторов — внутрипольные конвекторы: стены остаются «чистыми» и ничем не перегруженными.
Гарнитур изготовили на заказ. Холодильник разместили в зоне кухни, добавили секцию вертикального хранения. Верхний ярус визуально облегчили, спрятали встроенную сушку в нижних шкафах. Фасады под дерево — МДФ в пленке Greenwood «Орех Американский мокко», светлые фасады — МДФ в пленке Greenwood «Кварц Грей». Столешница и стеновая панель выполнены из искусственного акрилового камня.
Диван Льери Мини в зоне гостиной — от divan.ru. Модель выбрали за редкий формат: ширину около 160 см, лаконичную форму и аккуратную геометрию, которая не дробит интерьер. Журнальный стол Джейми — идеальный компаньон к нему по форме и цвету.
Товары бренда divan.ru
Спальня
«Ключевым акцентом в спальне стали декоративные стеновые панели с фрезеровкой и черной патиной, — комментируют дизайнеры. — Они добавляют глубину и архитектурность, при этом остаются нейтральным фоном для света и мебели».
Обратите внимание: кровать Кьево от divan.ru выполнена в той же ткани, что и диван в гостиной. Это осознанный прием: единая цветовая палитра и материалы не дробят пространство на части — «переходя» из комнаты в комнату, интерьер воспринимается цельно. Плюс лаконичная спинка с кантом органично подхватывает общую тему — кант присутствует и в диване, и в люстре, и на фасадах шкафов, и в текстиле.
Товары бренда divan.ru
«Самая интересная позиция — единый мебельный блок, где шкаф логично перетекает в прикроватную тумбу, — комментируют дизайнеры. — Такое решение экономит место, упрощает восприятие и делает интерьер цельным. Система хранения выполнена на заказ. Фасады тумбы и изголовье — МДФ в пленке Greenwood “Орех Американский мокко”, рабочий стол — ЛДСП Kronospan “Каштан Арвадонна угольный”».
Прием: за стеновыми панелями скрыта подсветка, но реализована она нестандартно. Световой профиль установлен не прямо, а под углом 45°, направленным от стены в сторону комнаты. Свет бьет в панель, отражается от нее и уже мягким рассеянным потоком уходит на стену. Такой прием скрывает сам источник света, убирает резкий засвет и не акцентирует неровности поверхности — на стене появляется живое, теплое свечение без явного источника.
Прихожая
Отделка прихожей такая же, как в основном пространстве квартиры — чтобы входная зона не выглядела обособленной. Система хранения полностью встроенная. Внутри скрыты электрощиток и коллектор. Помимо этого, в шкафу предусмотрен отдельный хозяйственный блок, где может храниться все необходимое для быта: пылесос (с отдельной розеткой), стремянка, гладильная доска, утюг и прочий инвентарь.
Санузел
Зону раковины и стиральную машину поменяли местами по сравнению с исходным вариантом, чтобы улучшить эргономику и упростить доступ к технике. Тумба и шкаф с зеркалом изготовлены на заказ. За зеркалом скрывается сантехнический лючок и хранение.
«Ключевой акцент в санузле — душевая стойка с термостатом, — рассказывают авторы проекта. — Это редкое решение для небольших квартир, но оно существенно повышает комфорт в ежедневном использовании и визуально добавляет интерьеру статусности без перегруза».
Авторы проекта
Дизайнеры Юнна Лукинских (@yunna.lukinskih, телеграм-канал, сайт, pr.yuloostudio@gmail.com, +7 916 380-13-95) и Наталья Пеле, студия инвестдизайна Yuloo Studio.
Yuloo Studio — студия инвестиционного дизайна, специализирующаяся на создании функциональных и эстетичных интерьеров для аренды и продажи, основана в 2023 году. Наша задача — повышать ликвидность объектов, увеличивая доходность для клиентов на 30–50 %. За плечами команды более 150 реализованных проектов и глубокое понимание, как превратить недвижимость в эффективный инвестиционный инструмент.
Хотите опубликовать свой проект в нашем блоге?
Пишите на roomtour@divan.ru
Форматы, жанры, на каких условиях >>






















































