Концепция этой квартиры — спокойствие, размеренность и уют, которыми владелец проникся настолько, что отказался сдавать объект и переехал сюда сам. Заглянем в гости.

Место: г. Москва, ЖК «Симфония 34»
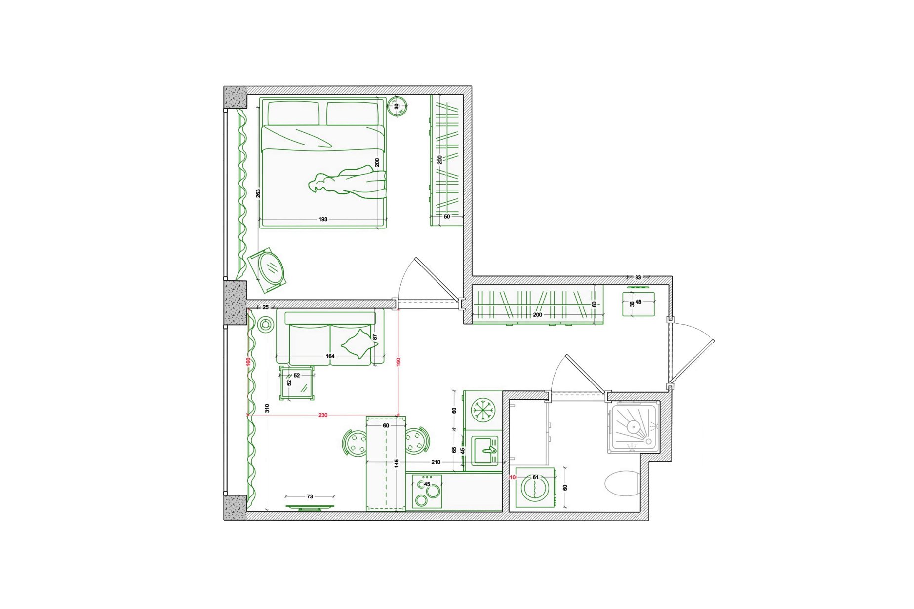
Объект: однокомнатная квартира 32 кв.м
Высота потолков: 2,8 м
Автор проекта: специалист по подготовке квартир к аренде и продаже (хоумстейджер) Ольга Патраман
Автор фото: Руслан Стукалов
Бюджет: 1,3 млн рублей
Реализация: 2025 год
Что просил заказчик
- Современный интерьер для молодых людей: одного жильца или пары.
- Много мест для хранения.
Логика планировки
Застройщик сдавал квартиру с готовым ремонтом. Перепланировки не было — в целях экономии бюджета отделку постарались по максимуму сохранить. Кухня в квартире объединена с гостиной, спальня изолирована, санузел совмещен.

Кухня-гостиная
«Разработка интерьера началась с планирования кухонной мебели и ее дизайна, — рассказывает автор проекта. — Акцентным цветом определили припыленный голубой. Этот оттенок применили на фасадах и фартуке кухни. Общая гамма в квартире нейтральная: серый, айвори. Ковер с имитацией состаренности тоже стал акцентом».
Угловой кухонный гарнитур вместил всю необходимую техникy: встроенный холодильник, микроволновую печь и индукционную варочную панель на три конфорки. Духовой шкаф ставить не стали по просьбе заказчика. Фасады и столешница гарнитура изготовлены из ЛДСП, на фартуке — мозаика с контрастной затиркой. В роли обеденной группы — барная стойка с двумя стульями, она же зонирует пространство кухни от гостиной.
«Одной из задач заказчик озвучил спальное место в зоне гостиной, — рассказывает автор проекта. — С этим на отлично справился диван Льери Мини от бренда divan.ru. Торшер рядом располагает к вечернему чтению, а также создает атмосферу уюта. А завершает композицию ковер “как в детстве”».
Обратите внимание на постеры, изготовленные на заказ. Они напечатаны на бархатной бумаге с клеевой основой. Чтобы избежать бликов, использовали только раму, без защитного стекла.
Товары бренда divan.ru
Спальня
Пространство спальни не стали перегружать — здесь только необходимая мебель: двуспальная кровать Сваут, распашной шкаф Кимбол, деревянный столик Джейми и зеркало в полный рост.
«Лейтмотивом в интерьере стали элементы из дерева: ножки у кровати и дивана, прикроватный стол, антресоль в прихожей, тумбы для хранения в ванной, — комментирует хоумстейджер. — Дерево для меня — это про дизайн-хилинг, когда чувствуется больше уюта, спокойствия и расслабленности».
Товары бренда divan.ru
Прихожая
«В прихожей есть еще одна система хранения. Мы взяли шкаф Енссон от divan.ru за основу и изготовили к нему антресоль на заказ. Плюс перекрасили ручки в белый — так они сливаются с фасадами и “растворяются”. На входе в квартиру — композиция из зеркала Эгиль необычной формы и пуфа из букле Кропс от divan.ru».
Товары бренда divan.ru
Санузел
В санузле сохранили отделку от застройщика, добавили шкаф для встроенной стирально-сушильной машины и повесили постер.
Автор проекта
Ольга Патраман (olgapatraman@gmail.com, профиль в Телеграм) — специалист по подготовке квартир к аренде и продаже (хоумстейджер).
Хотите опубликовать свой проект в нашем блоге?
Пишите на roomtour@divan.ru
Форматы, жанры, на каких условиях >>













































