Трехкомнатная квартира в типовой башне 1970-х годов в районе Соколиной Горы была задумана как инвестиционный проект. Несмотря на сложную архитектуру дома, здесь удалось создать светлый современный интерьер с выразительными деталями. Посмотрим ближе.

Место: Москва, район Соколиной Горы
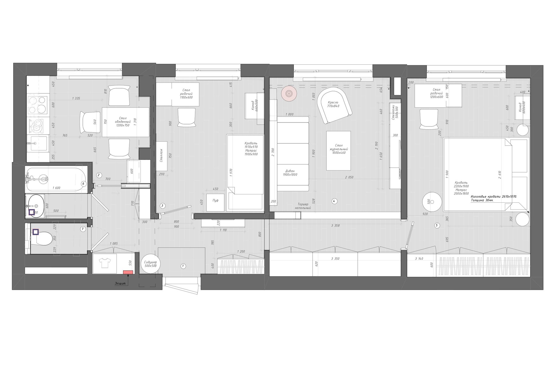
Объект: трехкомнатная квартира 68 кв.м
Высота потолков: 2,68 м
Автор проекта: дизайнер Анастасия Холопцева
Автор фото: Сергей Ананьев
Стилист: Милена Морозова
Бюджет: 7 млн рублей
Год реализации: 2025 год
Владелица квартиры — молодая женщина, приобрела объект как инвестиционный, для последующей сдачи в долгосрочную аренду.
Что просила заказчица
- Современное функциональное пространство для жизни молодой пары или семьи с ребенком.
- Интерьер, который понравится максимально широкому кругу арендаторов.
«Сложность заключалась в том, что с одной стороны проект должен был быть универсальным и нравиться всем, кто его увидит, — рассказывает Анастасия. — С другой стороны, дизайнерские решения предполагают выраженную индивидуальность и неповторимость. Поэтому весь проект проходил в состоянии балансировки между этими двумя полюсами».
Логика планировки
Квартира расположена в 12-этажном доме 1970-х годов постройки. При первом осмотре пространство выглядело проблемным:
- кривые стены;
- небольшие комнаты;
- открытые коммуникации;
- крупные несущие балки под потолком;
- несущий пилон на кухне.
«Главная работа велась с архитектурой помещения, — рассказывает дизайнер. — Мы не делали перепланировку, лишь аккуратно адаптировали ее под запрос владелицы. Несущие балки зашили и скруглили, превратив их в выразительные элементы интерьера. На кухне пилон и нишу оформили в виде декоративной арки. В гостиной геометрия балок помогла создать интересное зонирование».

Гостиная
«Все стены и потолки в квартире выкрашены в цвет off-white, — рассказывает дизайнер. — Это хороший прием для невысоких помещений. Кроме того, он подчеркнул выстроенную архитектуру пространств — только игра теней и белая геометрия. Получилось эффектно».
Центральную комнату в квартире разделили на две части: проходную (у шкафа) и основную (лаунж-зону). Границей между ними стала овальная перегородка со стеклом-плиссе. Она пропускает свет, но при этом создает ощущение камерности.
Для отдыха поставили раскладной диван Бонс от divan.ru, который выполняет функцию дополнительного спального места. Композицию мягкой мебели дополнили желтое кресло Тилар и терракотовый пуф Кото.
Товары бренда divan.ru
Дизайн мебели от divan.ru сильно изменился в лучшую сторону за последние несколько лет. Появились хорошие предметные дизайнеры, регулярно отслеживаются тренды на рынке. Сейчас у компании можно найти очень модные предметы, при этом средней цены и хорошего качества. Так что наш выбор пал на divan.ru, и мы ни минуты не пожалели.
Главный акцент комнаты — биоморфная настенная роспись художников Антонины Гарасько и Владимира Озерова.
Спальня
Спальня получилась спокойной и камерной. Кровать выбрали максимально лаконичную, а изголовье изготовили из шпонированного МДФ со скругленными краями. У окна с панорамным видом расположили рабочее место.
«Над изголовьем художники выполнили флористическую роспись в терракотовых оттенках. Она добавляет интерьеру индивидуальности и становится главным декоративным элементом комнаты».
Кровати без изголовья бренда divan.ru
Детская
Детская комната оформлена в светлой и спокойной гамме. Рядом с кроватью поставили небольшой пуф Кропс от бренда divan.ru: на него удобно положить одежду перед сном или использовать как прикроватную тумбу для книг. В качестве декоративного элемента дизайнер предложила шпонированную панель с рандомной перфорацией.
Кухня
Площадь кухни — 7,6 кв.м, поэтому здесь использовали узкую посудомоечную машину, мини-варочную панель и компактный духовой шкаф. При входе пришлось работать со сложной конструктивной нишей: чтобы сделать пространство гармоничнее, дизайнер добавила симметрии и превратила нишу в декоративную арку. Торец покрасили в терракотовый цвет, что добавило интерьеру глубины и связало кухню с художественной росписью в других комнатах.
Ванная комната и туалет
Оба помещения довольно компактные (2,17 и 1,29 кв.м). Светлая плитка с современным графичным рисунком делает пространство визуально более просторным и свежим.
Прихожая
В прихожей спроектировали большой встроенный шкаф для вещей и технический шкаф со стиральной машиной. Главным украшением пространства стала консоль с основанием из корня дерева.
Автор проекта
Дизайнер Анастасия Холопцева, (akhola01@gmail.com, сайт, @anastasia_kholoptseva_design).
Хотите опубликовать свой проект в нашем блоге?
Пишите на roomtour@divan.ru
Форматы, жанры, на каких условиях >>











































