Сдержанный дизайн и отсутствие визуального шума, чистые линии и выверенные пропорции. Эта квартира на юге Сочи предназначена для молодой семьи — пары с двумя маленькими детьми. Посмотрим, какой он — интерьер для спокойного, размеренного отдыха.

Место: г. Сочи
Объект: евротрешка 90 кв.м
Высота потолков: 2,45 м
Автор проекта: дизайнер Станислав Бороздинский
Автор фото: Максим Максимов
Реализация: 2025 год
Что просили заказчики
- Продумать встроенные системы хранения.
- Обыграть небольшую высоту потолков (2,45 м).
- Использовать в интерьере светлые оттенки.
«Так как это квартира для отдыха в южном регионе с богатой и красочной природой, требовалось сделать интерьер максимально спокойным, — рассказывает дизайнер. — В качестве базы мы взяли стилистику минимализма — проект строился на выверенных пропорциях и игре полутонов».
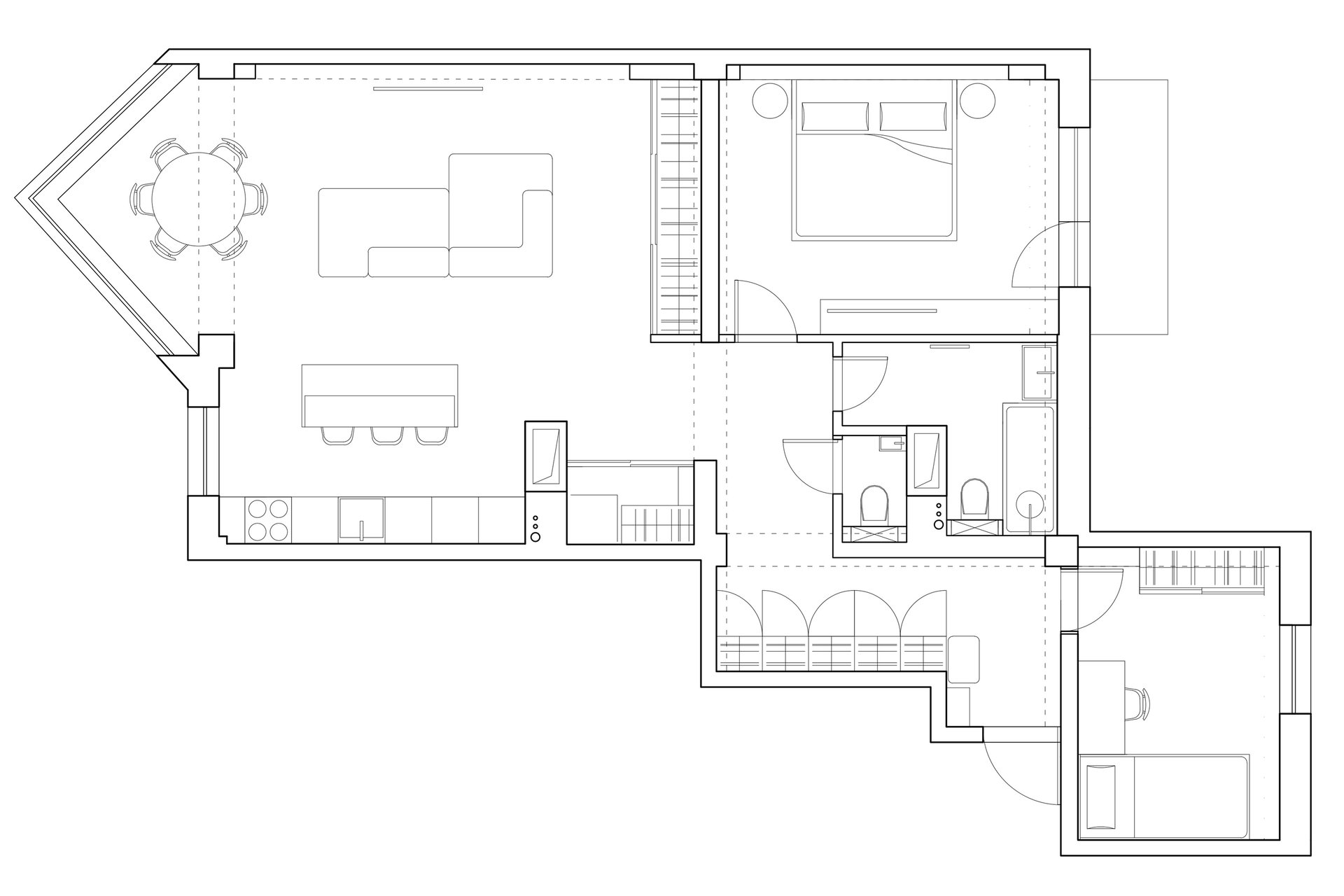
Логика перепланировки
Планировочное решение от застройщика — изолированная кухня, гостиная, две спальни, санузел и гостевой туалет. В ходе перепланировки кухню и гостиную объединили. Мокрые точки остались на своих местах.
Кухня-гостиная
Кухонный гарнитур изготовлен на заказ по индивидуальным размерам. Здесь предусмотрено все необходимое: встроенный холодильник, духовой шкаф, СВЧ-печь, посудомойка и вытяжка.
Зоны готовки и отдыха разделяет остров — белая конструкция в тон фасадам гарнитура и стенам сохраняет визуальную легкость пространства.
Чтобы «приподнять» потолки, ТВ-зону оформили панелями с вертикальной фрезеровкой. У панорамного окна эту функцию берет на себя драпировка штор на скрытом карнизе.
Центральным элементом гостиной стал модульный диван Этен от divan.ru. Обивку мы выбирали в онлайн-конструкторе, стараясь попасть в оттенок ламината. Остановились на бежевом велюре — ко всему прочему, это практичный и износостойкий материал.
Товары бренда divan.ru
Спальня
Двуспальная кровать с мягким изголовьем изготовлена на заказ. По обе стороны от нее — прикроватные тумбы Кимбол от divan.ru в пастельном оттенке с акцентными ручками черного цвета.
Обратите внимание на стены. В спальне повторяется прием с вертикальными панелями. Здесь они визуально увеличивают высоту помещения и добавляют динамики в монохромный интерьер.
Товары бренда divan.ru
Детская
Меблировку детской не удалось завершить на момент съемки, поэтому комнату можно посмотреть лишь на визуализациях. Ее интерьер продолжает общую концепцию. Здесь есть двухъярусная кровать, место для занятий (в будущем появится еще одно), а также большой зеркальный шкаф.
Прихожая
В прихожей организована зона хранения — распашной шкаф, где предусмотрены несколько отделений для верхней одежды, полки для хранения сезонных вещей и аксессуаров. Акцентными деталями интерьера стали элементы черного цвета — выключатели и ручки шкафа.
Санузел и гостевой туалет
«Поскольку большая часть квартиры выдержана в светлых тонах, санузлы решили оформить в темной палитре для создания контраста, — комментирует дизайнер. — Хранение в санузле организовано под раковиной — в тумбе. В туалете есть шкаф над инсталляцией».
Автор проекта
Дизайнер Станислав Бороздинский (+7 911 779-01-36, info@nowdesign.ru, сайт, @nowdesign_interiors).
Хотите опубликовать свой проект в нашем блоге?
Пишите на roomtour@divan.ru
Форматы, жанры, на каких условиях >>

















































