Строгие линии в этой квартире уравновешивают радиусные формы мебели. Это диалог прямого и плавного, где каждая деталь работает на создание спокойной, визуально выверенной композиции — «линии покоя».

Место: г. Санкт-Петербург, ЖК бизнес-класса «Нева Хауз»
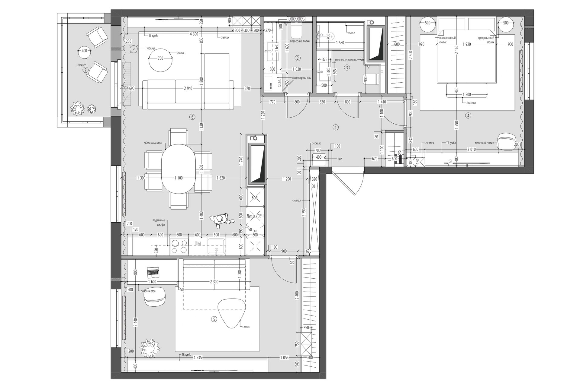
Объект: евротрешка 106 кв.м
Высота потолков: 3 м
Авторы проекта: дизайнеры Валентина Черемных и Артем Вечко
Стилист: Екатерина Чазова
Автор фото: Маргарита Низамова
Реализация: 2025 год
Дом, в котором находится квартира, расположен на Петровском острове — в одном из живописных и спокойных уголков Санкт-Петербурга. Из окон открывается вид на историческую солодовню пивомедоваренного завода «Бавария», а по набережной у дома неспешно скользят яхты. Именно этот неторопливый ритм стал интонацией для интерьера, созданного дизайнерами Артемом Вечко и Валентиной Черемных.
Что просили заказчики
- Универсальное, спокойное и функциональное пространство для долгосрочной аренды.
- Интерьер-базу: нейтральную, но не безликую. Где каждая деталь продумана, но атмосфера остается гибкой для разных сценариев использования.
«Пространство проектировалось для аренды, но задача состояла не просто в том, чтобы оно было универсальным — важно было создать ощущение дома: сдержанного, продуманного, уютного, способного стать основой для жизни самых разных людей, — рассказывают авторы проекта. — Поскольку квартира предназначена для аренды, у нас не было конкретного заказчика с фиксированным составом семьи. Пространство спроектировано универсально — кабинет при необходимости трансформируется в детскую».
Логика перепланировки
Квартиру застройщик сдавал с черновой отделкой. Планировочное решение сохранили, ограничившись минимальными корректировками.
Основной задачей стало зонирование: кухню, столовую и гостиную объединили в общесемейное пространство, выделили приватную зону спальни, предусмотрели кабинет (или детскую), два санузла — гостевой (туалет, совмещенный с постирочной) и общий, с душевой. В каждой зоне предусмотрены системы хранения, интегрированные в архитектуру интерьера.
«Интерьер задумывался лаконичным и эстетичным, без избыточного декора, с акцентом на качество и тактильность материалов. При этом важно было сохранить баланс между визуальной выразительностью и разумным бюджетом — без использования дорогостоящих отделок и мебели. Предпочтение отдавалось доступным решениям (часто из наличия) и проверенным поставщикам, — рассказывают авторы проекта. — Дизайн выполнен в спокойной, светлой палитре, где доминируют натуральные оттенки и текстуры: теплое дерево, “мягкий” мрамор, матовая краска на стенах, уютный текстиль. Интерьер получился сдержанным, но живым, наполненным воздухом, светом и тишиной. Он не требует немедленного наполнения, но готов к “жизни” — для тех, кто ищет не просто аренду, а ощущение дома».
Кухня-гостиная
Стены в кухне-гостиной покрыты матовой краской, создающей ровный мягкий фон. Фартук выложен керамогранитом с естественной текстурой камня. Нейтральная база подчеркивает спокойный характер интерьера и позволяет свету свободно работать с пространством. Главным акцентом в столовой зоне стала работа Бориса Аникина из серии «Модель вселенной» — она задает философский ритм и добавляет интерьеру индивидуальности.

Стол Маунт и стулья Джаспер от divan.ru с округлыми формами создали ощущение уюта и визуальной мягкости, поддерживая баланс с четкой геометрией кухни и теплым оттенком деревянных поверхностей. В результате интерьер воспринимается гармоничным и обволакивающим, а атмосфера — расслабленной и домашней.
Обратите внимание: над обеденным столом висит люстра, состоящая из круглых матовых плафонов. Ее мягкий рассеянный свет красиво подчеркивает фактуры отделки по вечерам.
Товары бренда divan.ru
Спальня
В отделке спальни использовали спокойные, тактильные материалы, поддерживающие общую атмосферу равновесия. Акцент сделан на деревянных панелях за изголовьем кровати — они переходят на фасады встроенного шкафа, создавая в комнате ощущение целостности.

«В спальне продолжили тему мягких линий и плавных очертаний, выбрав мебель с округлыми формами. Кровать Юна 180 с изголовьем из приятной на ощупь ткани задает настроение всей комнате. У изножья расположилась банкетка Ринт. Компанию им составляют журнальные столики Ньюман с мягкими формами вместо прикроватных тумб и стул Нико — яркий акцент в насыщенной терракотовой обивке, оживляющий спокойную палитру спальни».
Товары бренда divan.ru
Вторую комнату меблировать не стали. Ее функционал и наполнение определять будущие арендаторы. Интерьер здесь универсальный — подойдет для кабинета, детской или второй спальни.
Прихожая и коридор
Система хранения в прихожей «работает» как часть архитектуры — не просто шкаф, а цельный объем, формирующий пространство. В зоне коридора он дополнен ритмичными открытыми полками с теплой подсветкой.
Пуф Ринт от divan.ru — лаконичный и одновременно тактильно уютный элемент. Его мягкие, плавные формы гармонично сочетаются с архитектурной строгостью пространства, смягчая линии и поддерживая общий мотив проекта — баланс между жесткостью и пластичностью.
Санузел и гостевой туалет
Оба помещения выдержаны в едином стиле — с лаконичными формами, четкими линиями и теплой природной палитрой. В гостевом туалете, совмещенном с постирочной, внимание притягивает большое зеркало с мягкой теплой подсветкой, которое визуально расширяет пространство и делает его уютнее. В отделке использована плитка под теплый мрамор — материал, который создает ощущение визуальной целостности, при этом практичен и долговечен. Системы хранения выполнены на заказ по индивидуальным эскизам.
В совмещенном санузле с душевой также доминируют теплые тона и отделка под мрамор. Главный акцент здесь — большое круглое зеркало, формирующее композиционный центр помещения.
«Больше всего мы довольны тем, что удалось сохранить в интерьере ту самую “линию покоя”, вокруг которой строилась концепция проекта. Мы уравновесили четкие, ритмичные линии архитектуры с мягкими, плавными формами мебели и света. Интерьер получился гармоничным, теплым и адаптивным — таким, который подойдет разным семьям с разным образом жизни, оставаясь при этом индивидуальным и наполненным спокойной эстетикой», — подводят итог авторы проекта.
Авторы проекта
Хотите опубликовать свой проект в нашем блоге?
Пишите на roomtour@divan.ru
Форматы, жанры, на каких условиях >>










































