Большая площадь дает простор дизайнерской фантазии и позволяет воплотить самые разные идеи: организовать уютное гнездышко для пары, создать адаптивное пространство для растущей семьи, обустроить кабинет для работы на дому и многое другое. В этой статье собрали ключевые принципы планировки, актуальные стили оформления и вдохновляющие фото красивого дизайна современных трехкомнатных квартир.

На фото: трешка 100 кв.м в г. Ростове-на-Дону. Дизайнер: Лина Дедюхина; стилист: Дарья Молодченко; фотограф: Инна Каблукова
О чем пойдет речь
- Особенности дизайна трехкомнатной квартиры
- Виды перепланировки
- Выбор стиля
- Правила выбора мебели
- Выбор цвета
- Дизайн современной кухни
- Дизайн гостиной
- Дизайн спальни
- Дизайн ванной комнаты и туалета
- Дизайн коридора
- Дизайн кабинета
- Дизайн детской
- Идеи для оформления интерьера трехкомнатной квартиры
- Как избежать ошибок в планировке и дизайне
- Коротко о главном
- Ответы на популярные вопросы
В отличие от студии или однушки, трешка дает нам больше свободы, но и больше рисков: можно легко перегрузить интерьер, потерять полезные метры или сделать неудобную планировку. Поэтому работу над проектом важно начинать с подробного анализа: сколько человек здесь живет, какие у них привычки, есть ли дети, нужен ли кабинет, как часто готовят дома и принимают ли гостей. От ответов на эти вопросы зависит буквально все.
Формат жилья
Это может быть евротрешка с большой кухней-гостиной и двумя спальнями или полноценные три комнаты с отдельным пространством для готовки. Первый вариант позволяет создать удобную столовую зону и место для сбора членов семьи, второй — получить еще одно изолированное помещение для работы или отдыха.
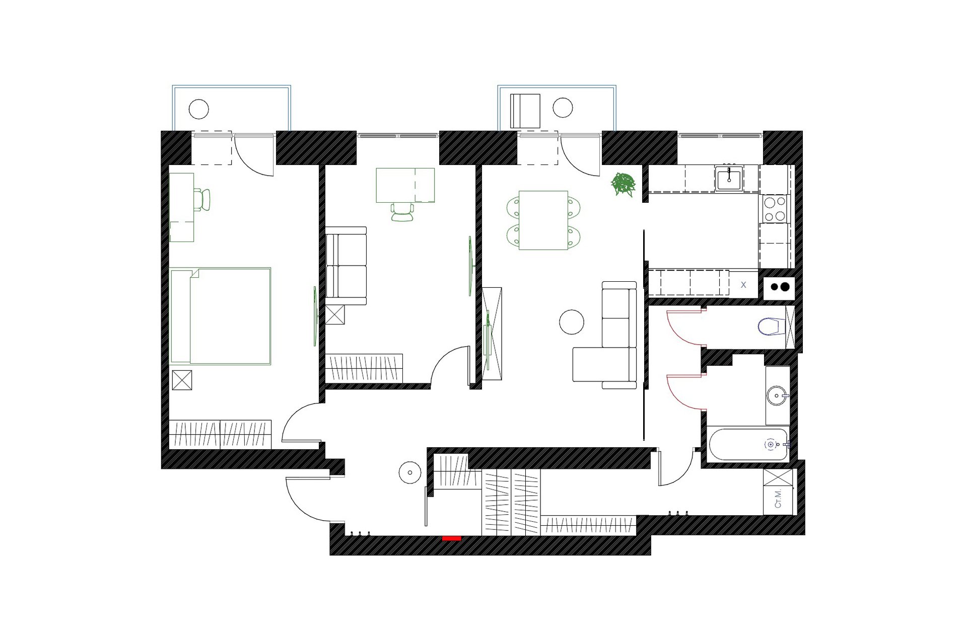
- На плане 1: евротрешка 81 кв.м, ЖК «Магнифика»
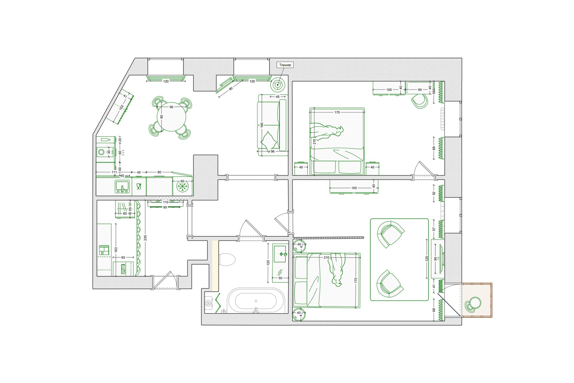
- На плане 2: трешка 70 кв.м в г. Санкт-Петербурге
Планировка
Дизайн-проект интерьера 3-комнатной квартиры ограничен лишь теми правилами, что диктуют законы. Поменять местами кухню и спальню получится не всегда, но и оставшихся вариантов большое множество. Можно объединять или делить помещения, добавлять гардеробные, постирочные, выделять рабочие зоны и уголки для занятий спортом. Просторное жилье хорошо поддается адаптации под разные сценарии жизни. Главное — найти решение, максимально подходящее именно вам.
В этом проекте из типовой евродвушки получилось сделать жилье с тремя отдельными спальнями и кухней-гостиной. На схеме: трешка 60 кв.м, ЖК «Проспект Мира»
Борьба с «коридорностью»
Типичная проблема старого фонда — длинный темный коридор, «съедающий» полезные метры. В дизайн-проекте трехкомнатной квартиры важно сделать удобную прихожую и превратить проходную зону в красивый и функциональный элемент: встроить системы хранения, использовать светлые цвета, зеркала и активное освещение. Иногда небольшая перепланировка позволяет сделать пространство частью проходной гостиной.
На фото: трешка 60 кв.м, ЖК «Проспект Мира». Рум-тур, героиня и дизайнер: Ольга Люст; стилист: Екатерина Чуганова; фотограф: Наталья Горбунова
Продуманное хранение
Чем больше места, тем выше риск нагромождения и беспорядка. Особенность красивого ремонта в 3-комнатной квартире — вместительные системы, максимально незаметно интегрированные в пространство. Это могут быть кладовые, гардеробные или большие шкафы, встроенные в имеющиеся или специально возведенные для этого ниши. Главное — заранее определиться с количеством вещей, которые необходимо разместить, и грамотно спланировать внутреннее наполнение.
На фото: трешка 75 кв.м, ЖК «Западный порт». Дизайнер: Наталия Седова; декоратор: Катя Шаповалова; фотограф: Женя Муравьева
Изделия бренда divan.ru
Единый образ
Чтобы квартира не выглядела как набор разрозненных «коробочек», важно продумать объединяющие элементы. Это может быть общая цветовая палитра или акцентный цвет, повторяющийся в разных комнатах, схожие материалы, например, породы дерева или фактуры керамики, либо одинаковые детали: фурнитура, форма светильников, плинтусы. Такая «перекличка» работает на цельное восприятие пространства и создает ощущение гармонии.
На фото: трешка 50 кв.м в г. Красногорске. В кадре диван прямой Рон от divan.ru. Архитектор-дизайнер, декоратор: Ульяна Гатина; фотограф: Константин Пырьев
Рассмотрим ключевые и самые популярные варианты из реальных проектов ремонта трехкомнатных квартир.
Объединение гостиной с кухней
Это возможно, если перегородка между ними ненесущая или на свободном плане от застройщика ее не было вообще.
Плюсы. Пространство кажется визуально больше, удобнее принимать гостей за отдельным большим столом.
Важные моменты. Для зонирования используют барную стойку, разные покрытия пола, цвет стен или потолочных конструкций. Дизайн кухонного гарнитура продумывают так, чтобы он гармонировал с зоной отдыха. А чтобы минимизировать распространение запахов, в рабочем пространстве устанавливают мощную вытяжку.

На фото: современный вариант дизайна 3-комнатной квартиры 116 кв.м, ЖК «Аллея Парк». В кадре диван угловой Спейс-1 и стулья Никсон — все от divan.ru. Дизайнер: Светлана Плетнева; фотограф: Владислав Нагин
Планировка с постирочной
Отдельное место для стирки и хранения бытовой техники — мечта многих хозяек. Чтобы ее осуществить, придется пожертвовать частью площади в нежилом пространстве.
Плюсы. Все принадлежности для уборки и стирки хранятся в одном месте, что повышает безопасность в доме, где есть дети. К тому же шум стиральной машины изолирован от жилых комнат.
Варианты организации: задействовать нишу в коридоре, закрыв ее раздвижной дверью; разделить совмещенный санузел на уборную и компактную постирочную; использовать пространство гардеробной. Главное, чтобы была возможность подвести коммуникации и обеспечить хорошую вентиляцию.
- На фото 1: евротрешка 61 кв.м, ЖК «Академика Павлова». Хоумстейджер и декоратор: Анна Семенович; фотограф: Егор Воробьев
- На фото 2: трешка 83,3 кв.м в г. Москве. Дизайнер: Дарья Бардина; фотограф: Константин Пырьев
- На фото 3: евротрешка 72 кв.м, ЖК «Тренд». Дизайнер: Евгения Самусева; фотограф: Евгений Гнесин
- На фото 4: трешка 133 кв.м в г. Москве. Авторы проекта: архитектор Екатерина Любимкина и дизайнер Софья Данилова — Carton Group; стилист: Ольга Рябова; фотограф: Евгений Кулибаба
Несколько санузлов
Это не роскошь, а серьезное вложение в комфорт, особенно для семьи с детьми и там, где часто бывают гости. Большинство вариантов ремонта трехкомнатной квартиры в новостройках учитывают две ванные — небольшую гостевую и просторную для хозяев.
Плюсы. Не приходится ждать в очереди, чтобы принять душ или почистить зубы. Приватное помещение позволяет полноценно расслабиться и уединиться.
Способы организации. Если вторая уборная не предусмотрена застройщиком, придется делить существующую или организовывать с нуля. Можно оборудовать дополнительный санузел с унитазом и раковиной в подсобной зоне, кладовой или свободной части коридора рядом с гостиной. Сложность перепланировки зависит от близости коммуникаций и в некоторых случаях требует серьезных инженерных работ.
На фото: трешка 133 кв.м в г. Москве. Авторы проекта: архитектор Екатерина Любимкина и дизайнер Софья Данилова — Carton Group; стилист: Ольга Рябова; фотограф: Евгений Кулибаба
Планировка с мастер-блоком
Так называется комплекс, объединяющий в одной приватной зоне спальню, гардеробную и собственную ванную, обязательно — не единственную в жилье.
Плюсы. Максимальный комфорт и уединение, рациональная организация личного пространства, повышение статусности жилья.
Как реализовать: одну из комнат (обычно самую удаленную) объединить со смежной уборной или частью коридора. А в проходной зоне между ними удобно сделать гардеробную.
Слева — пример современной планировки с двумя полноценными санузлами, один из которых находится в мастер-спальне. Справа — вариант с принудительным разделением просторной ванной на компактную взрослую и дополнительную — детскую
- На схеме 1: новостройка 83,2 кв.м, ЖК «Космос на Губкина»
- На схеме 2: трешка 133 кв.м в г. Москве
Рассмотрим актуальные направления для ремонта в 3-комнатных квартирах на фото реальных дизайн-проектов интерьера.
Минимализм
Философия «меньше — лучше» в чистом виде. Акцент на безупречных пропорциях, монолитных поверхностях и полном отсутствии визуального шума. Идеален для создания ощущения простора, порядка и безмятежности. Но требует безупречной организации хранения и инвестиций в качественные материалы, так как каждая деталь здесь находится на виду.
На фото: евротрешка 90 кв.м в г. Сочи. В кадре тумба прикроватная Кимбол-1 от divan.ru. Дизайнер: Станислав Бороздинский; фотограф: Максим Максимов
Сканди
В основе этого теплого и демократичного стиля — комфорт и наслаждение жизнью. Он делает пространство светлым, уютным и максимально функциональным, даже в условиях нехватки естественного света. Позволяет легко комбинировать мебель из разных коллекций и создает непринужденную и дружелюбную атмосферу. Идеально подходит для семей с детьми.
На фото: ремонт в трехкомнатной квартире 102,89 кв.м в г. Санкт-Петербурге. В кадре диван угловой Виена, кровать Кьево 160, кресло Винси и консоль Харис. Авторы проекта, декораторы и фотографы: Ксения Фомина и Яна Адулас, студия «Постели Ковер»
Изделия бренда divan.ru
Неоклассика
Элегантный баланс между традиционной симметрией, благородными материалами и современным комфортом. Лишена помпезности исторических стилей, но сохраняет ощущение респектабельности и гармонии. Такой дизайн прекрасно ложится на планировки с изолированными комнатами, подчеркивая их архитектуру. В оформлении часто используются приглушенные пастельные цвета в сочетании с натуральными фактурами светлого мрамора и массива дерева.

На фото: трешка 75 кв.м, ЖК «Западный порт». Дизайнер: Наталия Седова; декоратор: Катя Шаповалова; фотограф: Женя Муравьева
Контемпорари
Современный стиль, основанный на текущих трендах, комфорте и индивидуальности. Дает максимальную свободу тем, кто не хочет себя ограничивать рамками одного направления. Позволяет каждой комнате иметь свой характер, объединяя их общей атмосферой «здесь и сейчас». В зависимости от предпочтений хозяев, может быть ярким или вполне нейтральным.
На фото: трешка 83 кв.м в г. Москве. В кадре диван прямой Терм, кровать Вента 160 и ковер Тут Рядом Неожиданно — все от divan.ru. Дизайнер: Мари Гри; стилист: Виктория Горбачева; фотограф: Роман Мокров
Мидсенчури модерн
Культовый стиль 1950–60-х годов переживает новый пик популярности. Узнаваемая мебель на тонких ножках, лаконичные формы и яркая, но уютная палитра добавят любому интерьеру интеллектуальной легкости и художественной ценности. Модерн середины прошлого века, как часто называют направление дизайнеры, отлично работает не только в гостиной, но и в любом другом пространстве. Он хорошо сочетается с элементами сканди, лофта и бохо и не требует наличия дорогой винтажной мебели, вполне довольствуясь ее современными репликами.

Посмотрите, как выглядит 3-комнатная квартира в стиле мидсенчури модерн в доме со столетней историей. На фото: трешка 120 кв.м в г. Санкт-Петербурге. Дизайн: студия Аси Савельевой; фотограф: Дмитрий Цыренщиков
Джапанди
Синтез японского ваби-саби (красота в несовершенстве) и скандинавского хюгге идеален для создания комфортного места перезагрузки от городского шума. Натуральные и приглушенные оттенки и обилие фактуры дерева наполняет спальни и гостиные спокойствием и умиротворением. Отдельный плюс — организация хранения, доведенная до уровня искусства: пространство получается весьма практичным и не требующим долгой уборки.
На фото: интерьер 3-комнатной квартиры 60 кв.м в г. Казани. В кадре диван прямой Риббл-9, пуф Риббл-20, ковер Lotus и плед Lotus — все от divan.ru. Дизайнеры: Марьям и Антон Разуваевы, студия 2R BURO; фотограф: Александр Бурнатов
Дофаминовый декор
Смелый антидот повсеместному минимализму и отличный способ самовыражения: яркие предметы необычной формы созданы, чтобы вызывать всплеск радости и служить источником вдохновения. Такой дизайн заряжает энергией и буквально заставляет улыбаться. А еще это тот самый случай, когда каждую комнату можно раскрасить отдельно. Скажем, спальню оставить спокойной, а в кабинете или гостиной устроить настоящий «взрыв» цвета.
На фото: евротрешка 82 кв.м в г. Ростове-на-Дону. В кадре тумба прикроватная Ивейн-2 от divan.ru. Дизайнер: Анастасия Кудяшева; декоратор: Марина Гусева; фотограф: Ольга Акинина
Изделия бренда divan.ru
Разберем подробнее, как правильно обставить и обустроить трехкомнатную квартиру, пространство которой часто приходится делить между множеством задач.
Начните с плана
Для каждого помещения и зоны (отдых, работа, хранение) четко определите главный объект. В спальне это кровать, в гостиной — диван, в кабинете — стол. Начните расстановку с него.
Оставьте не менее 70–80 см рядом для комфортного перемещения, у дверей — 100 см. В просторных кухнях-гостиных необязательно расставлять мебель по периметру комнаты — попробуйте зонировать помещение, поставив обеденный стол посередине между кухней и гостиной.
На фото: трешка 81 кв.м, ЖК «Магнифика». Дизайнер: Ольга Непочатова; декоратор: Анна Выборнова; фотограф: Максим Максимов
Следите за размерами
Громоздкий гарнитур в маленькой спальне или хрупкие стулья в просторной кухне-гостиной разрушат восприятие пространства. А небольшой столик и мини-диван в ней просто «потеряются».
Помните, что крупные и темные предметы кажутся тяжелее, и наоборот. Для небольших комнат выбирайте мебель на высоких ножках, со светлой обивкой и фасадами. В помещениях с низкими потолками избегайте массивных антресолей и горизонтальных разделений.
Изделия бренда divan.ru
Рассчитайте хранение
Только кажется, что в трехкомнатной квартире много места — на самом деле к размещению вещей здесь нужно отнестись со всей серьезностью. Определите, где можно встроить или поставить шкаф, а где — запланировать кровати с подъемным механизмом. Нередко отдельно стоящая мебель занимает меньше пространства, чем гардеробная, но при этом вмещает больше.
Модели с ящиком для белья бренда divan.ru
Комбинируйте предметы
Мебель — главный проводник выбранного вами стиля в дизайне трешки. Она обязательно должна сочетаться с отделкой и между собой, но не обязана быть из одной коллекции — это устаревший подход.
- Создавайте ритм. Повторяйте в разных комнатах 2–3 основных материала, например, оттенок дуба, черный металл или матовое стекло.
- Выберите доминирующий нейтральный оттенок для крупных предметов, таких как диван и шкафы, и 1–2 акцентных — для более мелких (кресел или комодов).
- Комбинируя изделия разных стилей (классический стол и современные стулья), объединяйте их общим материалом, цветом или геометрией линий.
Изделия бренда divan.ru
Это самый мощный инструмент в дизайне интерьера. Он способен визуально менять пропорции комнат, влиять на настроение и объединять разрозненные помещения в гармоничное целое.
Придерживайтесь правила 60–30–10. То есть 60 % пространства должен занимать основной нейтральный цвет, которым оформляют стены, пол, крупную мебель. 30 % — дополнительный. Чаще всего это обивка дивана, ковры, шторы. 10 % — акцентный: декоративные подушки, предметы искусства и другие аксессуары.
Для северных, темных комнат выбирайте теплые и светлые тона: айвори, персиковый, карамельный, светло-зеленый. Для солнечных южных — более холодные и глубокие.

Посмотрите, как элегантно выглядит трехкомнатная квартира в черно-белом варианте с коричневыми акцентами. На фото: евротрешка 70 кв.м в г. Москве. В кадре журнальный стол Юко от divan.ru. Дизайнер и декоратор: Юлия Гришина; фотограф: Егор Кодяков
Создайте цветовой поток. Это поможет создать целостный дизайн во всех комнатах дома.
- Используйте оттенки одного цвета, но разной насыщенности. Как вариант: в гостиной — темно-зеленый, в спальне — приглушенный зеленовато-серый, в прихожей — светло-салатовый.
- Повторяйте акценты. В одном помещении горчичными могут быть подушки, в другом — рамка для картины, в третьем — ваза.
На фото: евротрешка 74 кв.м в г. Перми. Дизайнер: Елена Денисюк; стилист: Галина Зак; фотограф: Виталий Жданов
В трехкомнатной квартире именно она часто становится смысловым центром, будь то отдельное помещение или часть гостиной.
Принципы планировки. Выбор между прямой, Г- или П-образной схемой зависит от метража. В небольших помещениях идеальна линейная расстановка. В просторных — актуален остров или полуостров, выполняющий роль барной стойки, разделителя зон и дополнительного рабочего поля.
Оформление. В объединенном пространстве важно сочетать гарнитур с зоной отдыха, но часто кухню стараются дополнительно зонировать цветом, барной стойкой или отделкой пола. В отдельном помещении ориентируются на общую стилистику жилья.
На фото: трешка 85 кв.м, ЖК «Гармония». В кадре модель Эдвин от divan.ru. Дизайнер: Виктория Грузинова; фотограф: Екатерина Самойлович
Главное здесь — грамотное зонирование.
Принципы планировки. Обычно зону отдыха выделяют с помощью дивана. Например, поворачивая его спинкой к столовой или кухне. В небольших пространствах стараются найти точку фокуса (камин, экран телевизора или картину) и расположить мягкую мебель вокруг нее или напротив. Важное правило: между предметами должно быть удобно ходить, а расстояние до ТВ — не слишком большое.
Оформление. Может быть разнообразным — от яркого до сдержанного. Важно соблюдать ритм в формах, чтобы мебель сочеталась друг с другом, но лучше не покупать предметы из одного гарнитура — это смотрится очень скучно.
- На фото 1: евротрешка 70 кв.м в г. Москве. В кадре диван прямой Арклоу от divan.ru. Дизайнер: Екатерина Владимирова; декоратор: Варвара Калицкая; фотограф: Ольга Мелекесцева
- На фото 2: трешка 77 кв.м, ЖК «Лахта Парк». Дизайнер: Александра Чигинцева, студия CHI DESIGN; фотограф: Дмитрий Цыренщиков
Комнату хозяев часто выделяют из общей стилистики квартиры, добавляя туда любимые оттенки.
Принципы планировки. Главный предмет здесь — удобная кровать, именно от нее строится вся остальная планировка. Можно не ставить платяной шкаф при наличии гардеробной, но лучше оставить хотя бы комод с бельем, если для того, чтобы взять одежду, придется идти в другое помещение.
Оформление. Здесь допустимо больше уюта и «личного» характера, чем в остальных комнатах, но важно не перегружать пространство деталями. Цветовую гамму выбирают более спокойную, чем в гостиной: приглушенные оттенки, мягкие контрасты, матовые фактуры. Акценты расставляют с помощью текстиля, изголовья кровати, прикроватных светильников и арт-объектов, а не ярких и пестрых стен.
- На фото 1,2: трешка 75 кв.м, ЖК «Западный порт». В кадре кресло Пайпел и журнальный стол Юко — все от divan.ru. Дизайнер: Наталия Седова; декоратор: Катя Шаповалова; фотограф: Женя Муравьева
- На фото 3,4: трешка 61 кв.м в г. Сочи. Дизайнер: Наталия Варнавская; фотограф: Ольга Анисимова
Обычно санузел делают похожим на остальную квартиру. Варианты возникают, когда их минимум два.
Принципы планировки. В хозяйском чаще ставят полноразмерную ванну, в гостевом, если это не просто отдельный туалет, — душевую кабину. Если в жилье нет постирочной, ее организуют там, где больше места.
Оформление. Есть два противоположных подхода. В первом ярким и интересным делают основной санузел, во втором — дополнительный, чтобы впечатлить гостей.
На фото: слева — мастер-санузел, справа — гостевой в трешке 77 кв.м, ЖК «Лахта Парк». Дизайнер: Александра Чигинцева, студия CHI DESIGN; фотограф: Дмитрий Цыренщиков
В трехкомнатных квартирах обычно живут семьи с детьми, а это значит, что вещей и обуви всегда много.
Принципы планировки. Небольшие входные зоны стараются не захламлять, чтобы оставить свободное место для нескольких людей. В ход идет встроенная мебель, ниши для бытовой техники и обуви. Для зонирования используют практичную плитку.
Оформление. Чтобы скорректировать пропорции, дизайнеры используют специальные приемы. С помощью ярких цветов делают потолки ниже и «приближают» дальние стены, или наоборот, «вытягивают» пространство вертикальными полосами.
- На фото 1: евротрешка 53,2 кв.м, ЖК «Голден Сити». Дизайнер: Юлия Комиссарова; стилист: Наталья Орешкова; фотограф: Александра Дуброва
- На фото 2: трешка 77 кв.м, ЖК «Лахта Парк». Дизайнер: Александра Чигинцева, студия CHI DESIGN; фотограф: Дмитрий Цыренщиков
- На фото 3: трешка 83,2 кв.м, ЖК «Космос на Губкина». Дизайнер: Марина Аполлонова-Грасснер; фотограф: Олег Цыганов
- На фото 4: трешка 70 кв.м в г. Минске. Дизайнер: Анастасия Венедчук; декоратор: Валерия Макаревич; фотограф: Андрей Кот
Отдельный кабинет для удаленной работы — это очень удобное решение. Чаще всего его оформляют так, чтобы иметь возможность переделать в детскую или гостевую.
Принципы планировки. Пространство строится от рабочего стола. Если раньше было обязательно, чтобы свет на стол падал слева, то сейчас этим правилом можно пренебречь. Это правило выводили потому, что тень от пишущей руки закрывала лист бумаги, если свет падал справа. В условиях компьютеров и ноутбуков это больше неактуально. А вот свет, падающий на монитор — это некомфортно, поэтому если ставите стол спиной к окну, то нужно повесить шторы.
Оформление. Кабинеты часто делают нейтральными, чтобы иметь возможность переформатировать комнату под другие нужды. Часто в кабинет ставят второе рабочее место или запасное спальное — кресло или диван.

На фото: трешка 133 кв.м в г. Москве. В кадре диван прямой Сваут и журнальный стол Кайн — все от divan.ru. Авторы проекта: архитектор Екатерина Любимкина и дизайнер Софья Данилова — Carton Group; стилист: Ольга Рябова; фотограф: Евгений Кулибаба

На фото: трешка 75 кв.м, ЖК «Западный порт». Дизайнер: Наталия Седова; декоратор: Катя Шаповалова; фотограф: Женя Муравьева
В трехкомнатной квартире она часто сходится в стилистике с остальным пространством, но в ней учитывают специфику, например, яркие игрушки.
Принципы планировки. Планировка детской должна «расти» вместе с ребенком. Люльку придется заменить кроваткой, а в какой-то момент в комнате появится стол для учебы и полки с книгами. Это важно предусмотреть на этапе ремонта.
В детской должно быть достаточно пространства для активных игр и творчества: если заставить все мебелью, ребенку будет просто негде развернуться.
Оформление. В плане дизайна сейчас популярны нейтральные детские, где основная отделка и большая мебель — максимально «взрослые», а атмосфера поддерживается декором, который просто заменить. Это позволяет адаптировать комнату под возраст ребенка, не затевая большой ремонт.
- На фото 1: трешка 75 кв.м, ЖК «Западный порт». В кадре кресло Пайпел от divan.ru. Дизайнер: Наталия Седова; декоратор: Катя Шаповалова; фотограф: Женя Муравьева
- На фото 2: евротрешка 53,2 кв.м, ЖК «Голден Сити». Дизайнер: Юлия Комиссарова; стилист: Наталья Орешкова; фотограф: Александра Дуброва
- На фото 3: евротрешка 77 кв.м в г. Санкт-Петербурге. Дизайнер: Анна Посохова; фотограф: Евгений Серебряков
- На фото 4: евротрешка 70 кв.м в г. Москве. В кадре письменный стол Лесли от divan.ru. Дизайнер: Екатерина Владимирова; декоратор: Варвара Калицкая; фотограф: Ольга Мелекесцева
Разберем некоторые идеи дизайнерских ремонтов в 3-комнатных квартирах.
Зонирование кухни-гостиной
Идеальный вариант для большой семьи. Разделить пространство на зоны помогут цвет, фактуры и освещение. Диван сам по себе хороший элемент для деления, поэтому его использовали как естественную перегородку.

На фото: евротрешка 82 кв.м в г. Ростове-на-Дону. В кадре диван угловой Льери от divan.ru. Дизайнер: Анастасия Кудяшева; декоратор: Марина Гусева; фотограф: Ольга Акинина
Перекличка цвета
В этом проекте акцентный синий повторили в гостиной и спальне. В кухне он превратился в более нежный голубой оттенок, в коридоре — стал снова акцентным, но уже в светлом варианте. Обратите внимание, что везде он дополняется черными деталями, а в прихожей — оранжевым пуфом, по цвету сочетающимся со шторами и ковром в зале.
На фото: двушка 75 кв.м, ЖК «АйЛав». В кадре кровать Кевия 160 от divan.ru. Дизайнеры: Анна и Дмитрий Коробко; стилисты: Анастасия Корбут и Анастасия Домрачева; фотограф: Наталья Градусова
Сменные акценты
Яркие оттенки — важный элемент дизайна трехкомнатной квартиры. При этом основное оформление обычно вполне нейтральное. Обратите внимание на фотографии ниже: цвет добавили с помощью небольших предметов мебели и текстиля — при желании их можно быстро поменять и кардинально изменить настроение интерьера.
На фото: евротрешка 61 кв.м, ЖК «Академика Павлова». В кадре диван угловой Виена, ТВ-тумба Квелен-2 и ковер двусторонний Монти — все от divan.ru. Автор проекта и декоратор: хоумстейджер Анна Семенович; фотограф: Егор Воробьев
Хозяйственная зона
Появилась в этом проекте благодаря функциональному зонированию — то есть возможности разделить пространство так, чтобы использовать его по максимуму. Длинный и узкий коридор, который невозможно было раздвинуть из-за несущей стены, разделили, сделав две гардеробные и постирочную. И тем самым превратили бесполезные квадратные метры в весьма полезные.

На пути к идеальному интерьеру легко увлечься красивыми картинками и упустить из виду практичность. Вот три ключевые ошибки, которые сводят на нет все усилия, и способы их избежать.
1. Планировать «от мебели», а не «от жизни»
Иногда бывает так, что понравился конкретный диван или кухонный гарнитур, и потом его «впихивают» в план, жертвуя удобством проходов и функциональностью.
Дизайнеры всегда начинают с анализа режима дня и сценариев жизни семьи. Сколько человек одновременно готовят? Нужен ли отдельный кабинет? Как часто принимают гостей? Только ответив на эти вопросы, создают схему расстановки с соблюдением всех нормативных расстояний. Мебель подбирают под уже готовый, продуманный план.
2. Игнорировать инженерные коммуникации и несущие стены
На бумаге можно нарисовать все, что угодно: снос несущей стены для кухни-гостиной или перемещение мокрой зоны в спальню. В реальности воплотить это будет нельзя.
Первый шаг любого ремонта с перепланировкой — получение технического заключения и проекта у авторизованной организации. Это убережет от штрафов и опасных решений. Все смелые идеи по переносу сантехники обсуждайте с инженером-проектировщиком, чтобы оценить их реалистичность и бюджет.
3. Создать «разношерстный» интерьер без связующих элементов
Бывает так, что каждую комнату оформляют в изоляции, в разных стилях и палитрах. В итоге квартира напоминает показ коллекций, а не цельный дом.
Используйте объединяющие приемы: единый материал напольного покрытия, повторение 2–3 основных цветов во всех помещениях, схожую фурнитуру или форму светильников. Даже в разных по функции пространствах должен прослеживаться общий стилистический «почерк».

На фото: трешка 78,6 кв.м, ЖК «Западный порт». Дизайнер: Марина Козлова, студия Color Code Interiors; декоратор: Евгения Давыдова; фотограф: Женя Муравьева
- Не загоняйте себя в рамки «спальня, детская, гостиная». Три комнаты — это возможность адаптировать квартиру под свои уникальные нужды. Думайте в первую очередь о функциях, а не о названиях помещений.
- Определитесь с общей стилистической концепцией до начала ремонта. Это поможет при выборе отделки, мебели и декора.
- Используйте цветовой поток, чтобы связать отдельные зоны. Нейтральная база с акцентными повторами или монохромная гамма разной насыщенности не дадут интерьеру распасться на фрагменты.
- Выбирайте вместительные и незаметные системы хранения — они залог порядка и ощущения простора даже на скромных метражах. Инвестируйте во встроенные шкафы, грамотные гардеробные и многофункциональную мебель с ящиками.
- Продумайте многоуровневое освещение и личные акценты — картины, текстиль и предметы коллекций — они наполнят дом характером и уютом.
С чего начать разработку дизайна трехкомнатной квартиры?
В идеале — с анализа потребностей всех жильцов и составления списка обязательных зон (работа, отдых, хранение). Затем изучите план, отметьте несущие стены и инженерные коммуникации. Это основа для будущей планировки и стиля.
На фото: трешка 127 кв.м в г. Ярославле. В кадре диван прямой Маркфул от divan.ru. Дизайнер: Валерия Долгих; фотограф: Екатерина Худякова
Как выбрать единый стиль для всех комнат?
Определите общую концепцию, например джапанди, и используйте объединяющие элементы: повторяющиеся материалы, цветовую палитру или схожие детали в мебели и декоре. Помещения могут отличаться дизайном, но диалог между ними должен сохраняться.
На фото: трешка 103 кв.м, клубный дом «Болконский». В кадре кровать Кейт 160 от divan.ru. Дизайнер: Дарья Лёхова, основатель Branch Studio; декоратор: Мария Нечаева; фотограф: Дмитрий Цыренщиков
Можно ли создать современный трендовый интерьер без перепланировки?
Сделайте акцент на цвете, текстурах и умной мебели. Используйте акцентные стены, фактурный текстиль, многоуровневое освещение и многофункциональные предметы. Это освежит пространство и сделает его более актуальным без сложных строительных работ.

























































































































































