«Ко мне обратилась команда, которая занимается ремонтом и последующей продажей квартир, — рассказывает дизайнер. — Задача звучала так: создать стильный, запоминающийся интерьер, который привлекает покупателей с первого взгляда». Посмотрим, что получилось.

Место: г. Москва, ЖК «Эвер»
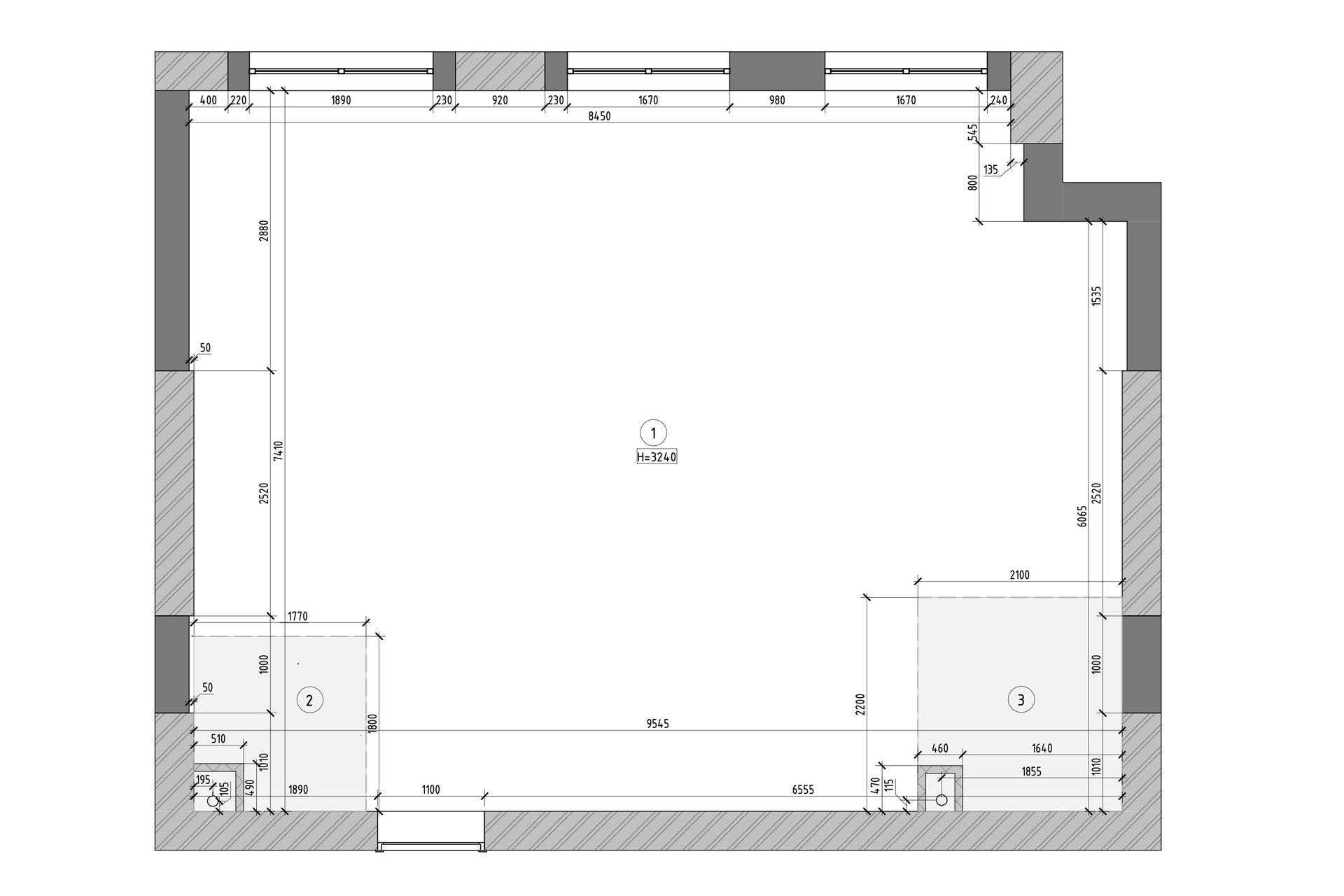
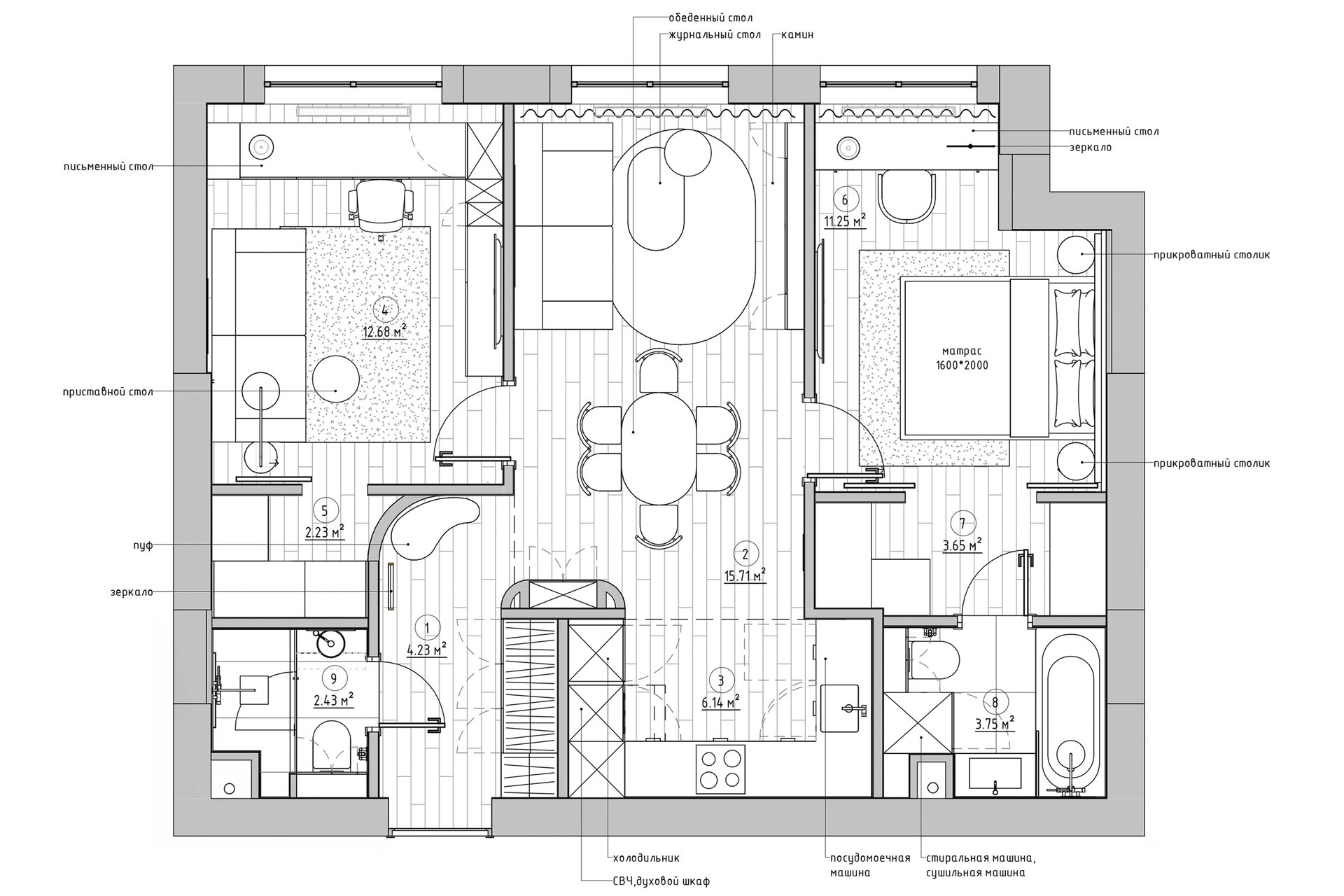
Объект: евротрешка 62 кв.м
Высота потолков: черновая 3,24 м; чистовая 3,08 м
Автор проекта: дизайнер-архитектор Евгения Петренко
Автор фото: Константин Пырьев
Бюджет: 8 млн рублей
Реализация: 2025 год
Что просили заказчики
- Визуальный простор на относительно небольшой площади.
- Камин в гостиной.
- Две гардеробные и два санузла.
Логика планировки
Застройщик сдавал квартиру со свободной планировкой. Кухню перенесли на место предполагаемого коридора, объединив ее с основной комнатой. «По бокам» остались мастер-спальня с гардеробной и санузлом, а также кабинет-гостевая, тоже с гардеробной. Квартира рассчитана на семью из двух или трех человек, гостевая комната может быть трансформирована в детскую.
Кухня-гостиная
«В квартире преобладают светлые оттенки, прежде всего из-за своей универсальности, — рассказывает дизайнер. — Таким решением воспользовались, чтобы интерьер нравился большинству потенциальных покупателей. Вторая причина — постоянно серая Москва: хотелось сделать пространство светлым и обволакивающим».
Кухонный гарнитур встроен в нишу. Столешница изготовлена из акрилового камня толщиной 20 мм, фартук выложен мелкоформатной плиткой. За витриной встроено три пенала от пола до потолка (один из них занят холодильником). На уровне столешницы предусмотрена ниша для мелкой бытовой техники.
«В качестве обрамления под потолком мы использовали комбинацию из потолочного карниза и панелей. Стандартная высота панелей 40 см — их пришлось разрезать пополам. В местах, где сильно скруглены стены, печатали копию карниза на 3D-принтере», — делится Евгения.
Камин в зоне гостиной — в строительном исполнении: в ходе ремонта собрали короб из гипсокартона, а затем облицевали его глянцевым керамогранитом. В нишу встроили биокамин, который работает на жидком топливе. Над ним — подвесная «стенка» под ТВ, где вокруг экрана организовано хранение: за фасадами спрятаны полки для мелочей.
Товары бренда divan.ru
Мастер-спальня
Стены в мастер-спальне окрашены в светло-бежевый оттенок. Стена за изголовьем — акцентная, с рельефными очертаниями (как на большом панно над диваном в гостиной). Кровать изготавливали под заказ: мягкое изголовье проходит по всей ширине комнаты. В качестве акцента использовали кант кирпичного цвета. Рабочая зона у окна — она же туалетный столик с зеркалом, с красивым видом.
Обратите внимание: за раздвижными дверями из рифленого стекла находится проходная гардеробная и мастер-санузел. В санузле установили ванну (во втором санузле — душ) и предусмотрели постирочную со стиральной и сушильной машинами, спрятанными в пенале.
«В хозяйском санузле мы повесили люстру, — комментирует дизайнер. — Она добавила не только визуальный акцент, но и красивый заливной свет для расслабляющей атмосферы».
Кабинет-гостевая
Вторая комната может в будущем превратиться в детскую, а сейчас она выполняет функции кабинета и гостевой спальни. Рабочее место — широкая столешница, которую установили между двумя стеллажами для книг и декора. Композицию дополняет компьютерное кресло, а также подвесная лампа с треком на потолке.
Центральное место в комнате занял диван Клаймар от divan.ru. Его обтекаемые формы поддерживают концепцию «мягкости» этого интерьера. Плюс, что очень важно, он раскладывается в спальное место.
Товары бренда divan.ru
«Основные источники света в проекте — точечные малозаметные светильники на потолке. Далее в каждой комнате мы предусмотрели разный тип освещения под те или иные задачи. В кабинете это подвесные светильники на треке над рабочим столом, поворотный спот у дивана, нависающий торшер для чтения или вечернего времяпрепровождения».
Гостевой санузел
Стены в гостевом санузле выложили двумя видами плитки: крупной в стиле терраццо и мелкоформатной бежевой с рельефом. Установили подвесную тумбу с двумя выдвижными ящиками для хранения, раковину, зеркало с подсветкой, унитаз, гигиенический душ и полотенцесушитель.
Прихожая
На входе в квартиру спроектировали шкаф, в котором выделено место и под бытовое хранение, и под хранение уличной одежды. Также есть пара выдвижных ящиков, где можно хранить ключи и аксессуары.
Пуф Корк от divan.ru повторил радиус нашей стены и идеально подошел по цвету. Интересная вещица, которую можно наблюдать прямо на входе. Он стоит в комбинации с высоким вращающимся зеркалом.
Автор проекта
Дизайнер Евгения Петренко (+7 950 769-41-41, сайт, @evg.petrenko, телеграм-канал).
Хотите опубликовать свой проект в нашем блоге?
Пишите на roomtour@divan.ru
Форматы, жанры, на каких условиях >>






















































