Это пространство — место, где тактильная терапия обретает эстетическую форму. Интерьер без лишнего медицинского формализма, создающий ощущение комфорта и «работающий» на доверие. Рассмотрим ближе.

Место: г. Санкт-Петербург
Объект: массажная мастерская 168 кв.м
Автор проекта: дизайнер Наталья Чабина, студия интерьерного дизайна CNDesign
Автор съемки: Дмитрий Модестов
Бюджет проекта: 11 млн рублей
Реализация: 2025 год
Что просили заказчики
- Адаптировать пространство под текущие задачи и бюджет с учетом имеющегося брендбука.
- Использовать материалы, соответствующие нормам РФ к данной категории помещений (пожарные нормы, санпин и т.д.).
- Подчеркнуть философию бренда (массаж как эстетический и эмоциональный опыт).
- Создать атмосферу с помощью освещения.
«Этот интерьер создан для эстетов, которые любят и ценят комфорт. Это услуга премиального сегмента для отдыха и расслабления, — рассказывает дизайнер. — Целевая аудитория — девушки и парни, обеспеченные, увлеченные, путешествующие, которые в суете города хотят расслабиться и получить качественную услугу.
Коммерческие помещения — это всегда аренда. У нас были арендные каникулы два месяца, но это всегда очень малый срок, поэтому необходимо было максимально сжать сроки и проекта, и реализации. Бюджеты в коммерции зачастую тоже ограничены. Так как это арендное помещение, решения принимали в соответствии с этим условием. Например, по брендбуку нужны были затемненные окна. Менять их, конечно, не стали, а просто наклеили пленку».
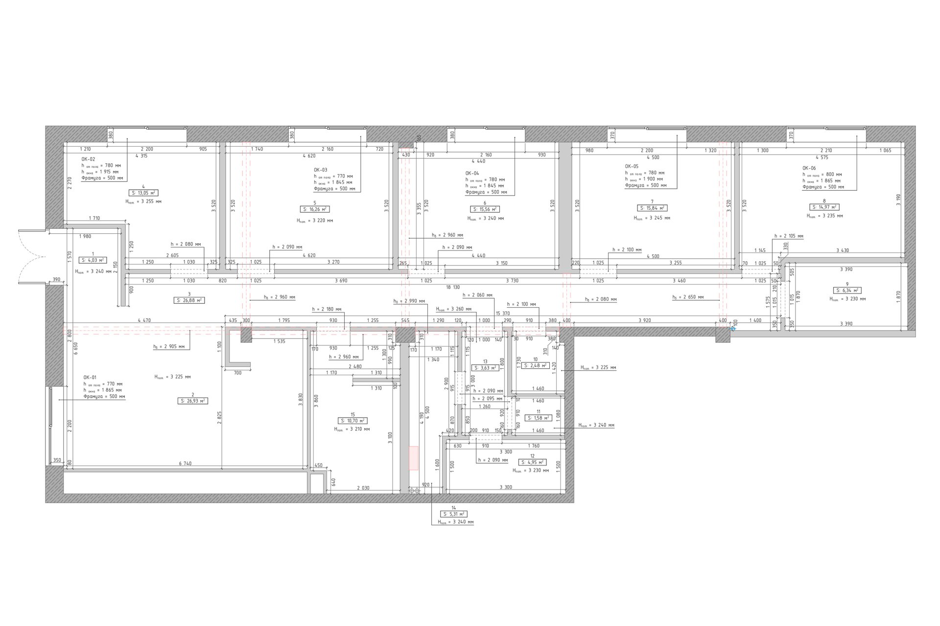
Логика планировки
Заказчик пришел с нестандартной задачей: по франшизе открывается массажная мастерская, выбрано помещение, в котором частично сделан ремонт, но изначально там планировалась стоматология. Пришлось адаптировать и переделывать планировку под новые задачи.
Сложность представляла система вентиляции, которая влияла на опуски потолков. Продумывая освещение, пришлось сильно постараться, чтобы светильники не пересекались с люками доступа и не давали визуального шума. В центре помещений были выводы воды под стоматологические кресла, раковины. Их пришлось заглушить. Электрику тоже адаптировали под новые задачи.
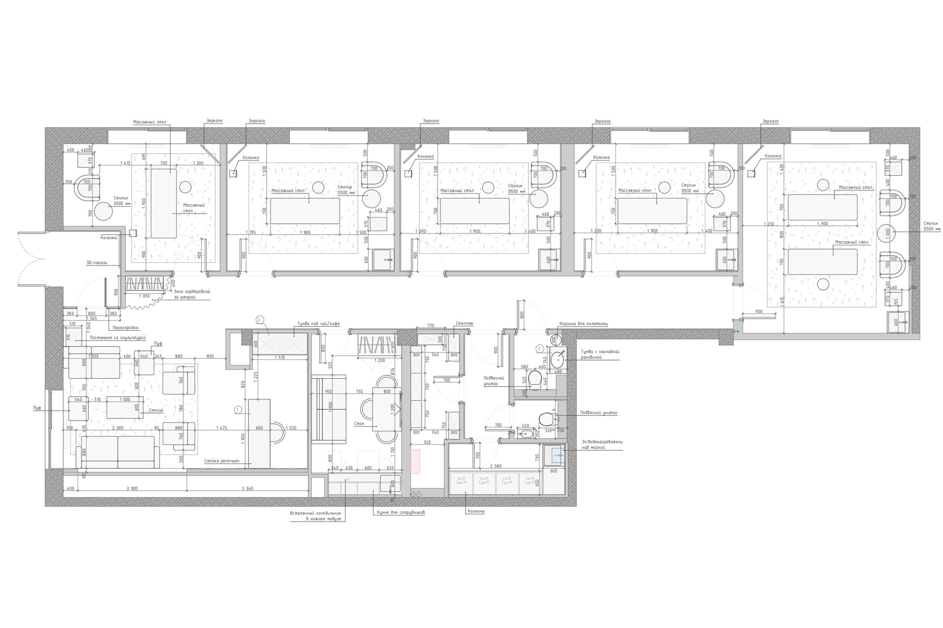
Зона ресепшен
Центральная зона ожидания напоминает лаунж-пространство бутика: глубокий диван, фактурный ковер, дымчатое стекло столов и сухоцветы в минималистичных композициях.
«Стилистика интерьера была задана франшизой, — рассказывает дизайнер. — Пространство выстроили на контрасте тактильных и визуальных ощущений. Глубокий графитовый фон стен и потолка погружает в состояние спокойствия и приватности, усиливая восприятие света и фактур. Чтобы добиться такого глубокого плотного цвета, использовали качественную краску. На этом фоне эффектно раскрывается фирменный акцент — мебель в обивке из бордового бархата, визуально теплая и мягкая, как сама суть прикосновения».
Для зоны ресепшен выбрали модульные диваны Брера от бренда divan.ru из дизайнерской линейки мебели от Димы Логинова. Насыщенный красный мгновенно стал фишкой салона.
Товары бренда divan.ru
Проблема и решение: в помещении не хватало места для гардероба, поэтому задействовать пришлось свободный угол неправильной формы. На заказ изготовили штангу, сшили штору из металлизированного материала — за ней теперь прячется система хранения. Чтобы поддержать тему с металлом в интерьере, в зоне тамбура разместили металлизированную панель на стене и потолке. Она уже на входе задает тон помещению.
Кабинеты
Свет — ключевой инструмент атмосферы мастерской. Сценариев несколько:
- приглушенный свет с потолка (основной);
- более яркий свет, включаемый при уборке;
- дополнительный свет (скрытая контурная подсветка), подчеркивающий логотипы, зеркала, картины.
«Подсветка не только зонирует пространство, но и формирует ощущение легкого свечения, будто интерьер “дышит”, — комментирует дизайнер. — Все вместе создает интимную обстановку и добавляет глубины».
Кресла Пайл в кабинетах тоже от divan.ru. Когда встает вопрос мебели, мы всегда идем прямиком сюда. Обивка подбирается онлайн в удобном «Конструкторе». А менеджеры помогают на каждом этапе.
Товары бренда divan.ru
«Этот проект демонстрирует новое прочтение эстетики велнеса, где массаж — не только сервис, но и пространственный опыт, — подводит итог дизайнер. — Что полностью подтверждает философия бренда».
Контакты: массажная мастерская «Мнёшь Трёшь» (@mneshtresh.spb, телеграм-канал, адрес: г. Санкт-Петербург, ул. Рентгена, 19).
Автор проекта
Дизайнер Наталья Чабина, студия интерьерного дизайна CNDesign (телеграм-канал, сайт, cndesign@mail.ru, +7 967 536-89-34).
Хотите опубликовать свой проект в нашем блоге?
Пишите на roomtour@divan.ru
Форматы, жанры, на каких условиях >>





































