«Хозяйка этой квартиры — молодая девушка, HR-директор, увлекается вином и виноделием, — рассказывает дизайнер. — Ранее она уже обращалась ко мне с целью декорировать и наполнить уютом эту же квартиру, что мы успешно сделали. Однако через какое-то время случилось ужасное — квартира, расположенная этажом выше, сгорела дотла. И весь декор вместе со старым ремонтом покрылся сажей и пеплом. Заказчица снова обратилась ко мне, но теперь за полным дизайн-проектом квартиры».

Место: г. Санкт-Петербург, Приморский район, ЖК «Гуси-Лебеди»
Объект: однокомнатная квартира 37 кв.м
Высота потолков: 2,6 м
Автор проекта: дизайнер Анна Савина
Автор фото: Рита Низамова
Бюджет: 2 млн рублей
Реализация: 2025 год
Что просила заказчица
- Использовать в колористике проекта нейтральную светло-серую основу с активными цветовыми акцентами.
- Сделать в интерьере отсылки к архитектуре и эстетике 70-х.
- Изменить планировку: объединить гостиную с кухней, выделить отдельную гардеробную.
«В референсах заказчицы было много старых фото советских районов эпохи развитого социализма — новые улицы и проспекты с бесконечной перспективой только что построенных одинаковых и прекрасных своей минималистичной простотой зданий. По духу эти фото напоминают район, в котором расположена квартира заказчицы, застроенный преимущественно новыми домами, и живут в них по большей части молодые, активные люди. Также из референсов мы взяли цветовое решение: нейтральная светло-серая основа, активные цветовые акценты и детали — стеклоблоки, бетон», — делится автор проекта.
Логика перепланировки
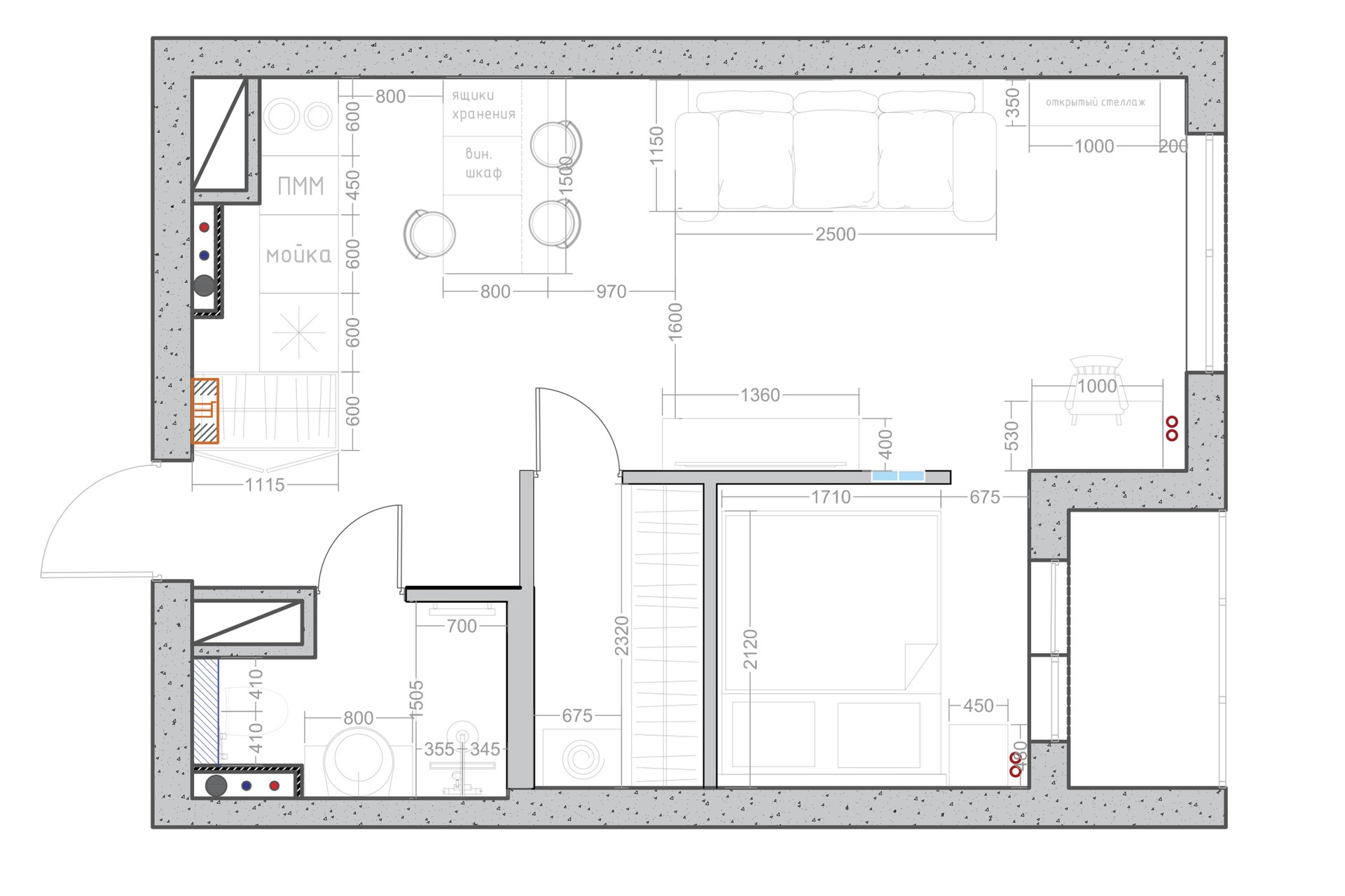
По задумке застройщика эта квартира — евродвушка. Хозяйку не устраивал ряд неудобств, и их исправили в результате перепланировки. Во-первых, избавились от узкого темного тамбура прихожей, объединив входную зону с кухней-гостиной. Что, помимо дополнительного света, дало возможность расположить в прихожей вместительный шкаф для верхней одежды и хозяйственных предметов. Шкаф «соединили» с кухонным гарнитуром. Во-вторых, выделили место для гардеробной, в которой также установили стиральную машину. Зона сна спряталась за стеной со стеклоблоками.
«Отправной точкой и главным акцентом в интерьере стал винный цвет под названием Winetone. Во всей квартире использована нейтральная цветовая основа — светлая краска с легким перламутровым оттенком. Еще одним запросом заказчицы была тонкая отсылка к архитектуре и эстетике 1970-х, что нашло отражение в минималистичности интерьера, упрощенных и точно выверенных цветоформах. Из той эпохи мы заимствовали стеклоблоки, которые, помимо собственной эстетики, наполняют пространство дополнительным естественным светом и мягкими бликами», — рассказывает дизайнер.
Кухня-гостиная
Пространство кухни-гостиной разделено на три функциональные зоны — кухня с островом, зона отдыха с диваном и ТВ, рабочая зона (заказчица часто работает из дома).
«Стена кухни, вдоль которой стоит гарнитур, имеет сложную ступенчатую форму, — делится автор проекта. — Но нам удалось найти нетривиальное и практичное решение в эстетике советского конструктивизма, и при этом разместить все радости буржуазного кухонного быта, включая даже винный шкаф».
Интересная деталь: хозяйка квартиры хотела добавить в интерьер фактуру бетона. Мастера по декоративной штукатурке создали эффект бетонного потолка и даже имитировали стыки плит.
Главной задачей при планировании гостиной было, с одной стороны, объединить, а с другой — визуально разделить зоны отдыха и работы. Гостиная привлекает ярким цветовым акцентом на стене, а также мягким диваном с пуфом для ног. Рабочая зона отделена от гостиной цветом. На стенах использованы активные обои с диагональной полосой.
Обратите внимание на зеркальное расположение обоев с диагональными полосками за стеллажом и рабочим местом.
Сроки и бюджет проекта были ограничены, поэтому мы старались использовать готовую мебель отечественного производства. Лаконичный по дизайну и очень комфортный диван Ларонсо заказали у бренда divan.ru. В случае приезда гостей с ночевкой его можно разложить.
Товары бренда divan.ru
Спальня
Квартира предназначена для проживания одного человека, поэтому часть комнаты отдали под хранение — организовали отдельную гардеробную со входом из кухни-гостиной. Зону сна отделили стеной со вставкой из стеклоблоков. Центральное место в комнате занимает кровать Пайл от бренда divan.ru.
Обратите внимание на яркий цветовой акцент на стене за изголовьем кровати — аналогичный прием использован и в гостиной.
Товары бренда divan.ru
Санузел
Планирование санузла было затруднено маленькой площадью (3 кв.м) и наличием восьми углов из-за расположенной внутри вентиляционной шахты и короба, в котором скрыта сантехническая ревизия. Здесь спроектировали душевую в строительном исполнении, повесили тумбу с раковиной, установили унитаз.
Автор проекта
Дизайнер Анна Савина (+7 921 941-18-91, pinkkvadrat@gmail.com, сайт, @asavina.design).
Хотите опубликовать свой проект в нашем блоге?
Пишите на roomtour@divan.ru
Форматы, жанры, на каких условиях >>






































