Это пространство получилось максимально комфортным и функциональным, а базовая отделка в светлых тонах стала фоном для искусства и коллекций хозяйки. Заглянем в гости.

Место: г. Москва
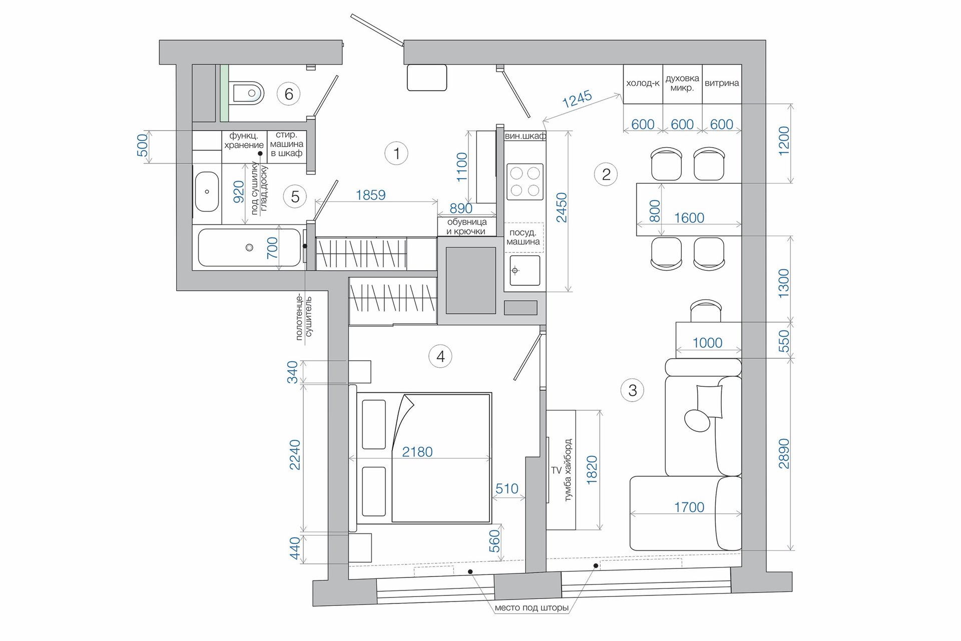
Объект: евродвушка 51 кв.м
Высота потолков: 2,6 м
Автор проекта: дизайнер Екатерина Пашнина
Автор фото: Елизавета Гуровская
Бюджет проекта: 6 млн рублей
Реализация: 2025 год
«Хозяйка — молодая девушка, работающая на удаленке, — рассказывает автор проекта. — Любит спорт, винтажную посуду и увлекается искусством».
Что просила заказчица
- Интерьер в светлых тонах.
- Оптимально разместить мебель и выделить функциональные зоны.
- Грамотно организовать места для хранения.
Логика планировки
Квартиру в доме 2010 года постройки заказчица приобрела уже с выполненной прежними хозяевами перепланировкой. Вариант с объединенной кухней-гостиной, отдельной спальней и раздельным санузлом ее полностью устраивал, поэтому изменений в планировку не вносили.

Кухня-гостиная
В качестве базы для интерьера выбрали светлую отделку, на фоне которой эффектно будут смотреться предметы из коллекций заказчицы. Стены покрыли моющейся краской, на пол уложили кварц-паркет в раскладке «елочка». Фартук облицевали плиткой с контрастной затиркой.
Кухонный гарнитур изготовили на заказ. Для фасадов в зоне приготовления пищи выбрали нежный и теплый оттенок розового. Пеналы белого цвета менее заметны на фоне светлой стены и не выглядят громоздкими. Вся бытовая техника, включая холодильник, встроенная. Удалось выделить место даже для винного шкафа. Зоны кухни и гостиной разделены обеденной группой с прямоугольным деревянным столом и терракотовыми стульями на металлическом основании.
Модульный диван Риббл для зоны отдыха заказали в divan.ru. Светлая, тактильно приятная обивка «растворяет» габаритную мебель в пространстве, трендовые округлые формы модели притягивают взгляд и добавляют уюта.
Товары бренда divan.ru
Стену за диваном украшают картины. При выборе палитры для интерьера дизайнер вдохновлялась искусством, которое нужно было вписать в обстановку. Вторую часть картин подбирали уже к цветовым акцентам в мебели и отделке. Винтажная хрустальная люстра собиралась вручную вместе с заказчицей.
Спальня
Отделка спальни повторяет отделку кухни-гостиной. Основной акцент здесь — мягкая кровать Вента от divan.ru в обивке насыщенного синего цвета. Картина на стене перекликается с оттенком кровати. С обеих сторон от изголовья расположили винтажные подвесные светильники, рядом с кроватью — зеркальные прикроватные тумбы. Для хранения предусмотрели небольшой распашной шкаф.
Товары бренда divan.ru
Прихожая
В имеющуюся нишу в прихожей встроили вместительный шкаф с зеркальными фасадами. В шкафу выделили место для несезонной одежды и спортивного инвентаря. Для обуви и верхней одежды предусмотрели открытую вешалку и обувную полку.
Ванная и туалет
Отделка в туалете и ванной комбинированная: стены в мокрых зонах выложили белой плиткой с контрастной затиркой, остальные поверхности выкрасили в насыщенный терракотовый цвет. В том же оттенке выполнена и подвесная тумба. Пол и ванну облицевали принтованной черно-белой плиткой. Стиральную машину спрятали за зеркальными фасадами шкафа, которые меняют восприятие пространства и визуально расширяют его.
Автор проекта
Дизайнер Екатерина Пашнина (сайт, +7 905 837-72-76, pashnina_design@mail.ru).
Хотите опубликовать свой проект в нашем блоге?
Пишите на roomtour@divan.ru
Форматы, жанры, на каких условиях >>
















































