«Хозяйка квартиры — молодая, эрудированная и целеустремленная девушка. Зимой она живет на Сахалине, а весну и лето проводит в Санкт-Петербурге, — рассказывают дизайнеры. — Интерьер мы проектировали для личного проживания. Заказчица ведет активный образ жизни: бегает марафоны, участвует в велосипедных заездах, занимается йогой. Квартиру хотелось сделать минималистичной и сдержанной, чтобы дома девушка могла отдыхать и замедляться».

Место: г. Санкт-Петербург, район Черная Речка
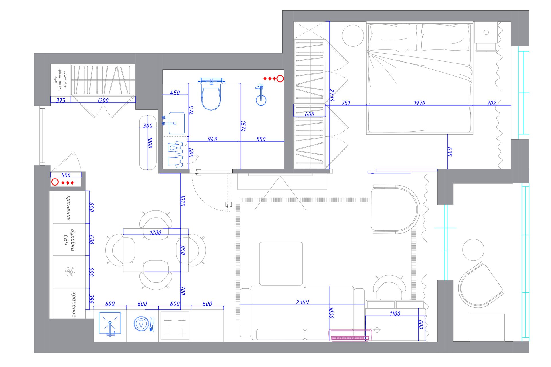
Объект: однокомнатная квартира 40 кв.м
Высота потолков: 2,6 м
Авторы проекта: дизайнеры Ольга Копосова и Виктория Егорова
Стилист: Наталья Стрижакова
Автор фото: Иван Сорокин
Бюджет: 5 млн рублей
Реализация: апрель 2025 год
Что просила заказчица
- Интерьер в темных оттенках, без ярких цветов и броских деталей.
- Места для хранения в каждой комнате.
- Различные сценарии освещения.
Логика планировки
Вносить изменения в планировку от застройщика не потребовалось — решение полностью подходило под желания заказчицы. Стену между спальней и кухней-гостиной заменили на раздвижную стеклянную перегородку — таким образом получили максимум открытого пространства.

Кухня-гостиная
В большей по площади комнате предусмотрели хранение, обеденную зону и место для отдыха. Вся корпусная мебель в проекте изготовлена на заказ, спроектирована специально под быт заказчицы. Между двумя глухими пеналами в потолок обустроили витрину с подсветкой для хранения декора и посуды.
На кухне полный набор техники: посудомоечная машина, варочная индукционная поверхность, встроенный холодильник, духовка и СВЧ-печь. Вытяжка с рециркуляцией — в этом доме нельзя подключаться к вентканалу.
Товары бренда divan.ru
В гостиной стоит лаконичный диван со множеством подушек, здесь удобно расположиться для отдыха и расслабления. Торшер на тонкой ножке дополняет композицию.
Спальня
Стеклянная перегородка между спальней и кухней-гостиной дает дополнительный объем помещению. Цвет стен для спальни специально выбрали темнее, чем в остальных помещениях — таким образом в комнате отдыха создали «атмосферу пещеры». Стену за изголовьем кровати задекорировали с помощью ЛДСП. Напротив окна расположили гардеробную со стеклянной витриной — это основная система хранения в квартире.
Кровать Фостер от бренда divan.ru — любимая модель, несмотря на то, что достаточно габаритная. Кровать идеальной формы, все углы сглажены, выглядит очень уютной, в ней есть подъемный механизм и система хранения, что важно для микроплощади.
Товары бренда divan.ru
Прихожая
В прихожую заказали вместительный шкаф для одежды, а напротив (в нишу под трубы) встроили небольшой хозблок. Зеркальную стену «прерывает» консоль с выдвижным ящиком для хранения.
Санузел
В совмещенном санузле спроектировали душевую, напротив — тумба для хранения с широкой столешницей. Стекло-перегородку заказали до потолка, такой ширины, чтобы можно было занести в помещение. Стена за унитазом — в мебельном исполнении, за гладкими фасадами скрыты дополнительные места для хранения.
Авторы проекта
Дизайнеры Ольга Копосова (сайт, @olyakoposova) и Виктория Егорова.
Хотите опубликовать свой проект в нашем блоге?
Пишите на roomtour@divan.ru
Форматы, жанры, на каких условиях >>






































