Дизайн этой квартиры создавали для взрослой пары, которая большую часть времени живет за городом, в частном доме. Многие оттенки и решения были вдохновлены природой, которая является неотъемлемой частью жизни супругов. Заглянем в гости.

Место: г. Нижний Новгород, ЖК «Зенит»
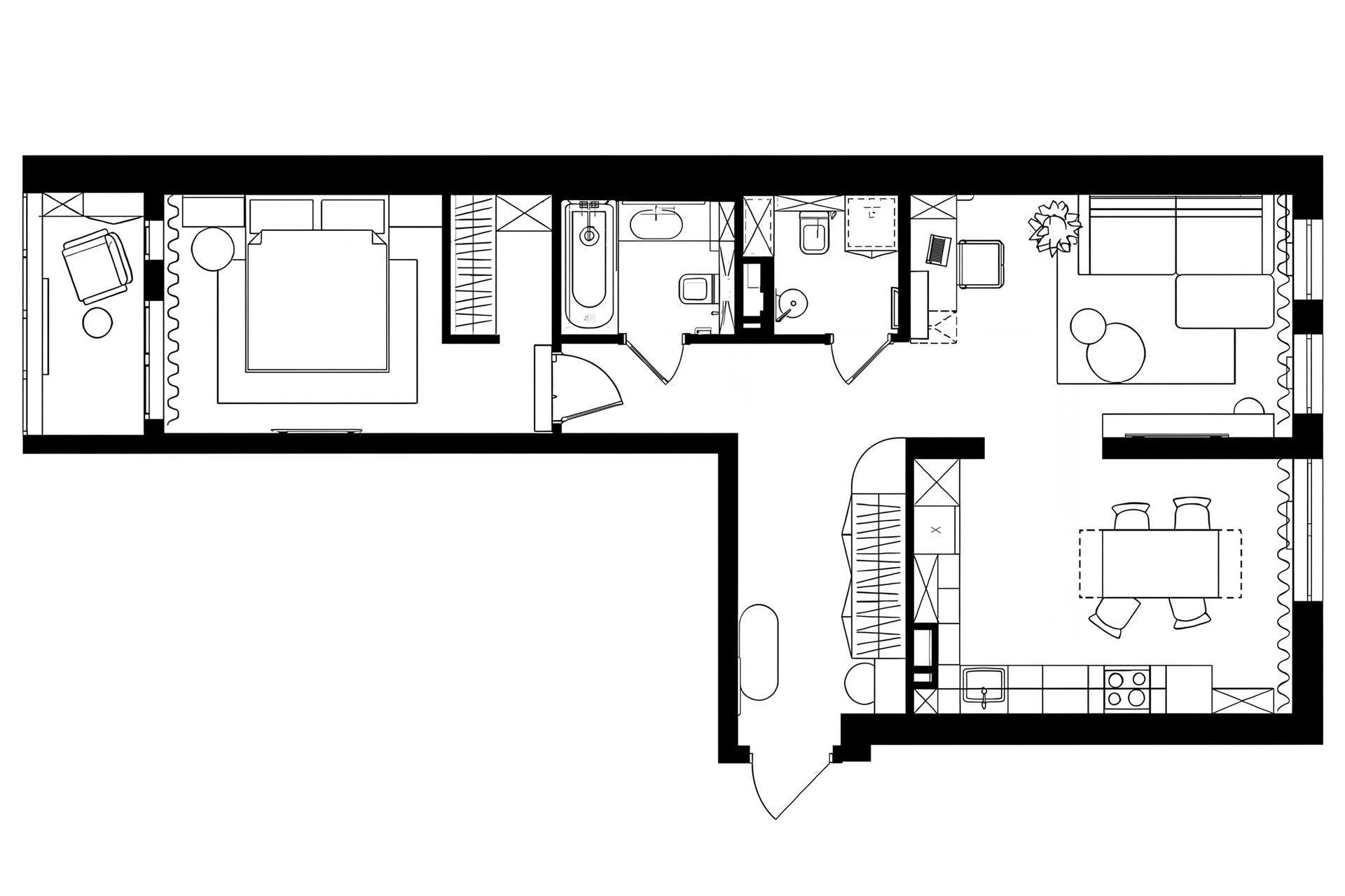
Объект: двухкомнатная квартира 70,4 кв.м
Высота потолков: 2,76 м
Автор проекта: дизайнер Марина Кириллова
Декоратор: Екатерина Шульц
Автор съемки: Юрий Прокофьев
Реализация: апрель 2025 года
Бюджет проекта: 6 млн рублей
Что просили заказчики
- Комфортный и современный интерьер, в котором будет удобно проводить время с близкими и друзьями.
- Большую систему хранения в прихожей.
- Добавить естественного света в спальню.
Логика перепланировки
На момент покупки квартира представляла собой бетонную коробку без отделки, но с межкомнатными перегородками. Квартира светлая, днем солнечные лучи «заливают» кухню и гостиную, а вечером закатный свет наполняет спальню.
Вход на кухню застройщик предусмотрел из прихожей. Чтобы спроектировать на входе в квартиру большой гардеробный шкаф, дверной проем заложили, а новый перенесли в гостиную. Чтобы добавить естественного света в спальню, «прорубили» дополнительное световое окно на лоджию.

Гостиная
Кухню и гостиную в квартире «связывает» широкий проем. Стены в гостиной покрыли краской белого цвета. Акцентные зоны выделили 3D-панелями из дюрополимера. На фартуке и на стене в рабочей зоне — керамогранит с фактурой натурального камня. На пол во всех комнатах уложили виниловый ламинат в раскладке «французская елка».
Вдоль стены напротив окна спланировали полноценную рабочую зону с местами для хранения. Большую часть комнаты занимает ТВ-зона с мягким угловым диваном. Ее дополнили журнальным столом Ньюман от divan.ru — черный цвет добавляет контраста интерьеру.
Товары бренда divan.ru
«В квартире продуманы несколько сценариев освещения, — рассказывает дизайнер. — Если оставить только фоновые подсветки, будет расслабляющая атмосфера, настраивающая на спокойствие после долгого рабочего дня. Для уборки или создания рабочей обстановки есть направленные и точечные светильники».
Кухня
На кухне хозяйка просила предусмотреть большую рабочую поверхность и много мест хранения. Угловой гарнитур с фасадами в эмали и столешницей из искусственного камня изготовили на заказ. По правой стороне расположили группу шкафов-пеналов, в которых спрятался холодильник и полки для хранения. Центральная часть — двухъярусная, здесь разместилась варочная поверхность с встроенной вытяжкой, посудомоечная машина, раковина с фильтром для питьевой воды и рабочая зона. Завершает композицию пенал с встроенной техникой — СВЧ-печью и духовым шкафом. У окна удалось разместить даже витрину с подсветкой для красивой посуды заказчиков.
Раскладной обеденный стол выполнен из массива и покрыт матовым лаком в черном оттенке. «Круг на стене возле обеденного стола — нестандартное завершение ритмичной объемной отделки стены, которая переходит из зоны гостиной в обеденную зону, приглашая гостей в “сердце дома”. Зеленый цвет на этой стене поддерживает оттенок кухонных фасадов. Получилось нетривиально и ярко», — комментирует дизайнер.
Освещение на кухне — магнитная трековая система. Доступно два сценария:
- когда стол стоит у стены и направленные подвесные светильники находятся в левом треке;
- когда нужно собраться большой компанией, стол перемещается в центр кухни, а светильники — в правый трек.
Спальня
Пространство спальни «укутывают» натуральные оттенки краски: травянисто-зеленый и теплый белый. Стену за изголовьем украсили фреской с природным рисунком.
Кровать Фостер 160 в велюре Ultra заказали в divan.ru. Обожаю эту модель, часто использую ее в проектах. Мягкое объемное изголовье и основание сегодня в тренде, а наличие подъемного механизма добавляет комфорта. Очаровательный пуф Поул от divan.ru у туалетного столика добавляет иронии и нежности пространству. Пуф с секретом — там тоже есть отсек для хранения.
Товары бренда divan.ru
Лоджия
«На лоджию продлили белый оттенок краски из спальни, тем самым умножая световой поток. Здесь организовали зону отдыха с креслом Пайл от divan.ru в ткани Piano. Для хранения здесь есть шкаф-пенал и тумба».
Прихожая
За уют в прихожей отвечает краска песочного цвета. Пол в грязной зоне выложен керамогранитом. Черная стена с входной дверью, отделанная декоративной штукатуркой, служит графичным акцентом.
«Шкаф в шпоне дуба величественно встречает гостей в прихожей и “приглашает” пройти в гостиную, — рассказывает дизайнер. — Кстати, шкаф переделывали семь раз, прежде чем он доехал до объекта. Дело в том, что у него нестандартная глубина (70 см, а все делают максимум 65 см), и такой радиус закругления не согласились сделать 90 % поставщиков в Нижнем Новгороде. Повезло, что один подрядчик согласился, и нам удалось реализовать задуманное в проекте решение».
Совмещенный санузел и гостевой туалет
Акцентом в санузле и гостевом туалете стал керамогранит с тропическим рисунком во всю высоту помещений. Керамогранит со спокойной фактурой бетона создает фон, направляя все внимание на панно, и создает обволакивающую атмосферу. Сантехника и аксессуары — черные, для выраженной контрастности.
В основном санузле удалось поставить ванну 170 x 75 см, унитаз с инсталляцией, подвесную тумбу с накладным умывальником и организовать много мест для хранения.
В гостевом туалете выделили зону постирочной. Здесь установили унитаз с инсталляцией, тумбу с накладной раковиной, шкаф со стиральной и сушильной машинами.
Автор проекта
Дизайнер Марина Кириллова (@kirilllllova.design, профиль в «Телеграме», группа во «ВКонтакте», профиль на Pinterest, сайт, golisheva.marina2015@yandex.ru, +7 915 951-33-89).
Хотите опубликовать свой проект в нашем блоге?
Пишите на roomtour@divan.ru
Форматы, жанры, на каких условиях >>




















































