«С владельцем этой квартиры мы познакомились еще в далеком детстве, — рассказывает дизайнер Светлана Рыжкова. — И вот, спустя 20 лет, жизнь свела нас снова. Интерьер проектировался для молодых супругов, которые на данный момент живут в другой стране. Дизайн делали полностью под хозяев, но с возможностью сдавать объект в первое время. Важно было оборудовать кабинет, так как владелец работает в сфере IT и планирует делать это из дома». Заглянем в гости.

Место: г. Москва, ЖК «Эвер»
Объект: двухкомнатная квартира 58,5 кв.м
Высота потолков: 2,9 м
Автор проекта: дизайнер Светлана Рыжкова
Автор съемки: Юлия Гордеева
Бюджет проекта: 6 млн рублей
Реализация: 2025 год
Что просили заказчики
- Гостиную с функцией рабочего кабинета.
- Максимум хранения на небольшой площади.
- Отдельную постирочную.
- Нетривиальные, но при этом универсальные цветовые сочетания.
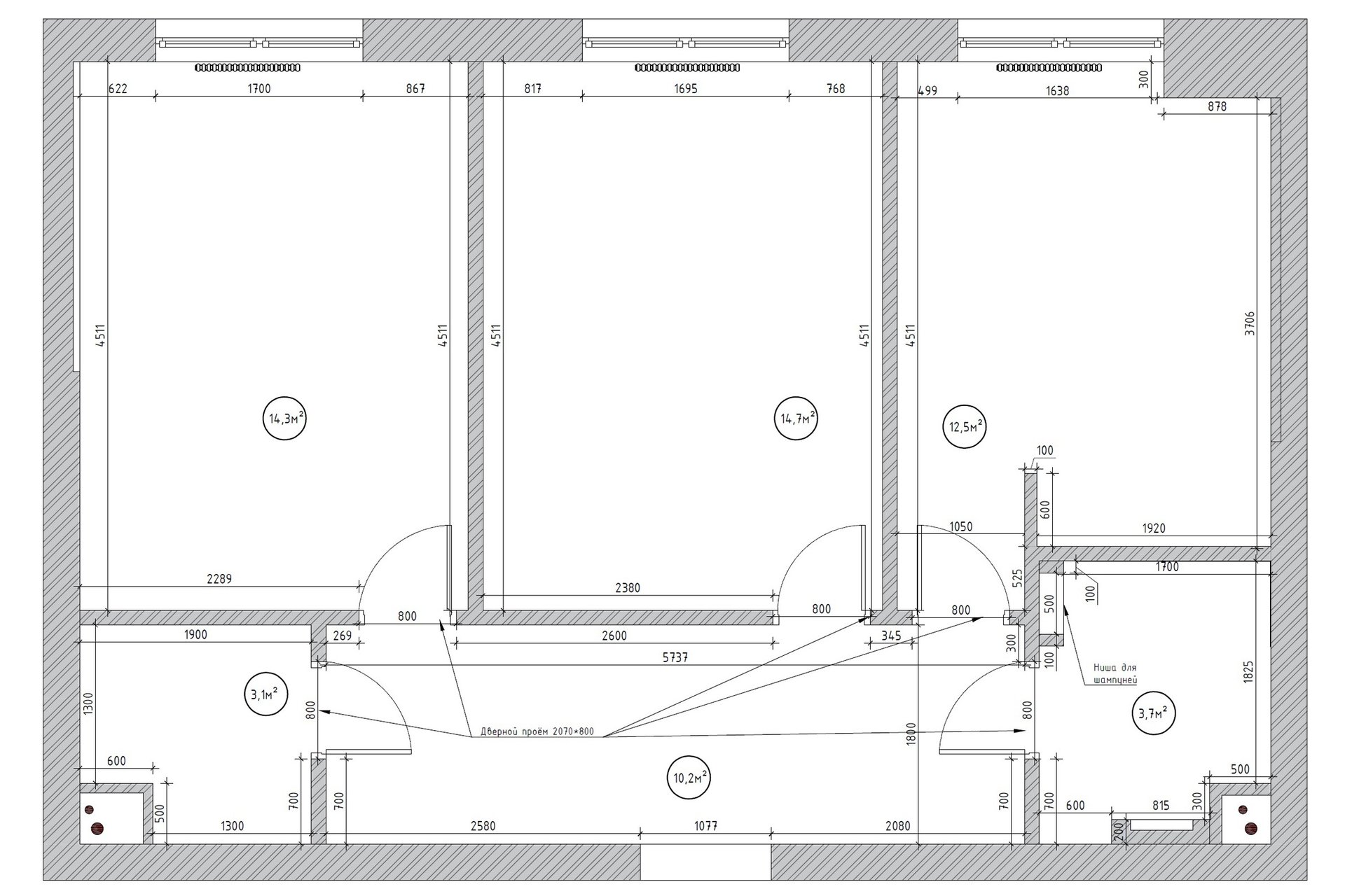
Логика планировки
Квартира сдавалась в бетоне. Все зоны выделяли сами, отталкиваясь от исходной планировки застройщика, мокрые точки не переносили. Необходимо было предусмотреть большое количество систем хранения, поэтому в холле спроектировали два больших шкафа до потолка. От одного санузла отказались в пользу полноценной постирочной.
Гостиная-кабинет
«Интерьер выполнен в современном стиле, который наиболее точно отвечает задачам по данному проекту, — рассказывает его автор. — Нам нужен был красивый, светлый дизайн с яркими акцентами, не загруженный мелкими деталями вроде лепнины или молдингов. Помимо прочего, хотелось сохранить ощущение воздуха и пространства. Основа палитры — теплый кремовый и серый. Их мы разбавили сочным бутылочным и терракотовым».
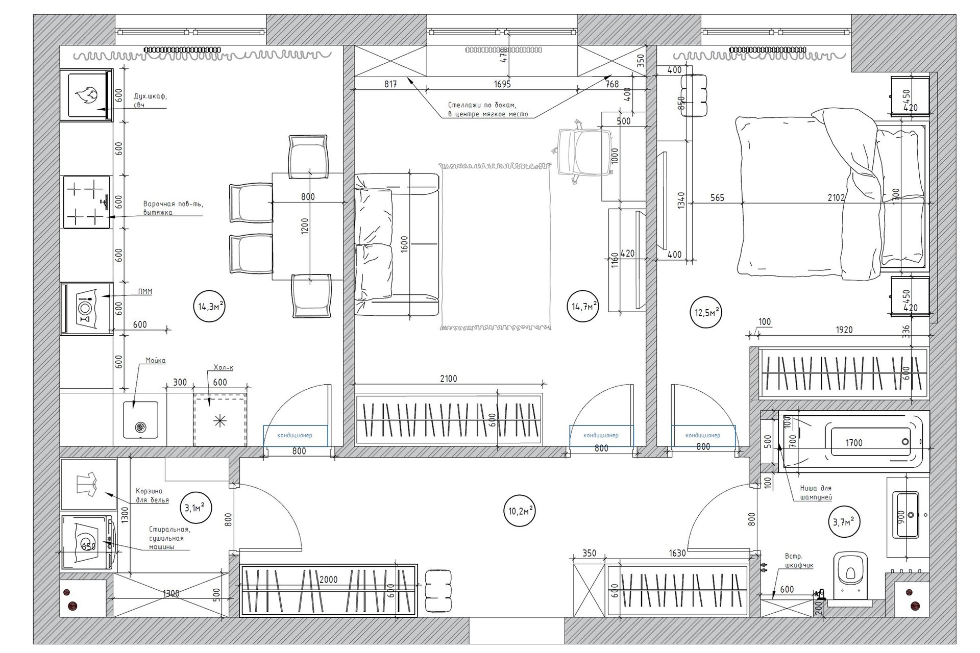
Гостиная в квартире закрывает сразу три функции: рабочего кабинета, места для отдыха и периодически — гостевой спальни. Центральное место здесь занимает диван Динс Мини от бренда divan.ru. Компактный в сложенном виде, он легко трансформируется в полутораспальное место.
Обратите внимание: подоконник превратили в дополнительное место для отдыха и чтения, заказав на него широкую мягкую подушку.
По обеим сторонам от окна расположили стеллажи Кейн от divan.ru, здесь удобно хранить как книги, так и декор. В рабочей зоне — письменный стол Нордик и мягкий компьютерный стул. Зону ТВ организовали с помощью лаконичной ТВ-тумбы Имин в белом цвете с основанием под дерево.
Напротив окна — шкаф-купе Мюнхен. Зеркальный фасад отражает солнечный свет, тем самым визуально расширяя пространство гостиной.
Товары бренда divan.ru
Спальня
В спальне три стены оклеили кремовыми обоями, а четвертую выделили яркими зелеными. Обивку двуспальной кровати Шерона от divan.ru заказали терракотового цвета. «Благодарна заказчикам, что не побоялись ярких цветов и не ушли в скучный беж, — комментирует автор проекта. — Такая спальня априори заряжает на хорошее настроение».
Напротив кровати установили комод Нордик, а у входа в комнату в нишу встроили шкаф-купе для хранения необходимых вещей.
Товары бренда divan.ru
Кухня
Стены на кухне окрашены в серый оттенок. Рядом с гарнитуром на полу уложена плитка с орнаментом, остальной пол отделан ламинатом. Фартук — из мелкоформатной плитки, которую выкладывали уже после установки гарнитура. Столешницу выбрали из искусственного камня. В обеденной зоне раскладной кухонный стол Авалон от divan.ru и четыре стула Алекс с терракотовой и серой обивкой.
Санузел
Совмещенный санузел вместил в себя полноценную ванну, подвесную тумбу с раковиной, шкаф для дополнительного хранения с зеркальным фасадом и унитаз с инсталляцией. Акцентная стена здесь выложена плиткой в бутылочном оттенке, остальные — светло-серым керамогранитом.
Обратите внимание на микс черной и белой сантехники. Такая реализация поддержана также рисунком напольной плитки.
Прихожая и постирочная
«Вместо гостевого туалета мы спроектировали полноценную постирочную комнату со стиральной и сушильной машинами, а также большим количеством открытых полок с подсветкой. На полу уложили плитку с орнаментом, которую дублировали в прихожей, тем самым объединили эти два пространства», — рассказывает дизайнер.
В прихожей стоят два больших шкафа до потолка. Здесь будет храниться как сезонная, так и повседневная одежда и обувь. У входной двери также есть подвесная консоль и мягкий пуф.
Автор проекта
Дизайнер Светлана Рыжкова (+7 926 896-82-13, tsv349@yandex.ru, сайт, @Leto_design).
Хотите опубликовать свой проект в нашем блоге?
Пишите на roomtour@divan.ru
Форматы, жанры, на каких условиях >>






















































