Кухня, гостиная, рабочее место и много хранения. Посмотрим, как удалось реализовать все эти функциональные зоны на крошечной площади.

Место: г. Москва, район Коммунарка
Объект: студия 22 кв.м
Высота потолков: 3 м исходная, 2,8 м после ремонта
Автор проекта: специалист по подготовке недвижимости к продаже/аренде (хоумстейджер) Екатерина Бабаева
Автор фото: Алексей Чуднов
Бюджет: 1,32 млн рублей
Реализация: 2025 год
«Этот проект я делала для себя как инвестиционный — с дальнейшей реализацией под аренду, — рассказывает дизайнер. — Но позже продала квартиру взрослой семейной паре, которая купила ее для своей дочери».
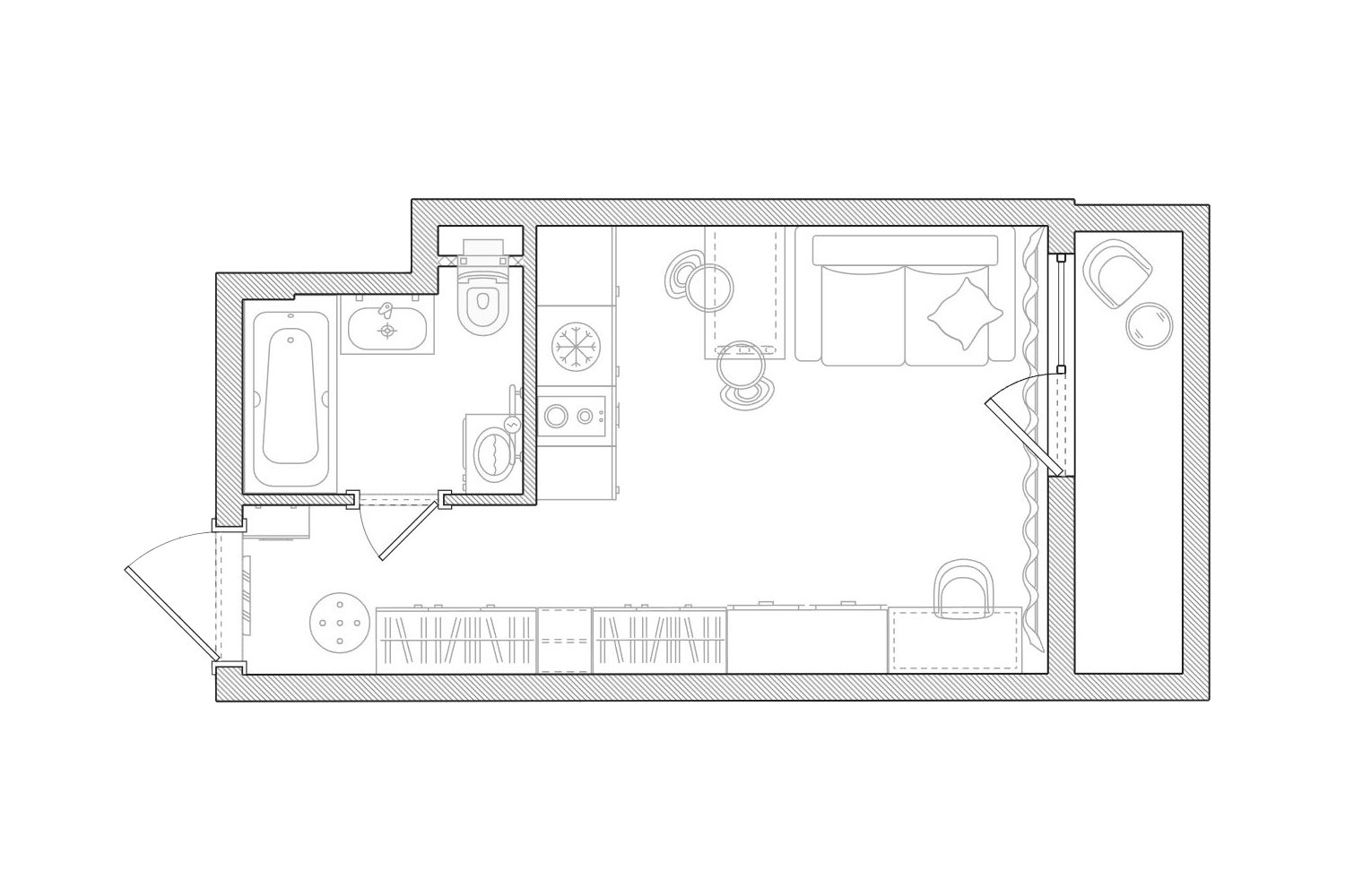
Логика планировки
Студия сдавалась с типовой планировкой, которую оставили без изменений, чтобы не растягивать сроки ремонта. Для зонирования использовали декораторские приемы (фотообои на стене) и соответствующую расстановку мебели.

Зона кухни-гостиной
«Небольшую квартиру-студию организовали для молодого поколения, с учетом его потребностей и активного образа жизни, — рассказывает дизайнер. — На кухне не стали устанавливать духовой шкаф, отдали это место для хранения. Под столешницей разместили небольшой холодильник с морозильным отсеком, встроили варочную поверхность на две конфорки и СВЧ-печь. Кухонный гарнитур спроектировали высотой до потолка, в небольших пространствах каждый сантиметр на счету. Фартук выложили акцентной бирюзовой плиткой, которая перекликается со шторами, а также мягким креслом».
В противоположной части комнаты находится зона гостиной. Вместо привычной ТВ-тумбы здесь поставили комод, до окна его «продлили» столешницей и организовали рабочее место. Вместительный шкаф продолжает систему хранения в комнате и плавно переходит в прихожую, открытый стеллаж с декором объединяет два шкафа и придает «легкости» конструкции.
Диван Льери Мини от бренда divan.ru занял центральное место в комнате. В сложенном виде он занимает совсем немного места, а в разложенном представляет собой полноценную полуторную кровать.

Товары бренда divan.ru
Обратите внимание: фотообои с арками за диваном зонируют пространство и визуально углубляют его.
Лоджия
Панорамную лоджию оснастили мягким креслом с обивкой в бирюзовом оттенке, а также столиком и бра. Здесь удобно расположиться за чтением или с чашкой кофе.

Прихожая
На входе в квартиру спроектировали вместительную систему хранения, также поставили обувницу и мягкий пуф. Зеркало закрепили на входной двери. На пол уложили керамогранит терраццо, как в ванной комнате.
Санузел
В совмещенном санузле установили полноценную ванну с душем, подвесную тумбу с раковиной, стиральную машину и унитаз с инсталляцией. Стены покрасили влагостойкой краской, на полу уложили керамогранит терраццо. Две акцентные стены выложили плиткой в оттенке «морской воды».

Автор проекта
Специалист по подготовке недвижимости к продаже/аренде (хоумстейджер) Екатерина Бабаева (профиль в «Телеграме»).
Хотите опубликовать свой проект в нашем блоге?
Пишите на roomtour@divan.ru
Форматы, жанры, на каких условиях >>
































