История этого интерьера началась с картины, которую одна из дизайнеров написала специально для проекта. Именно благодаря ей родилась концепция монохромного пространства, где во главе стоит графичность линий.

Место: г. Минск, ЖК «Минск-Мир»
Объект: однокомнатная квартира 60 кв.м
Высота потолков: 2,7 м
Авторы проекта: дизайнеры Юлия Поздняк и Светлана Кривицкая
Автор фото: Виталина Ворошкевич
Реализация: 2023 год
Что просили заказчики
- Организовать зону прихожей с множеством мест хранения и просторную кухню-гостиную.
- Обустроить приватную спальню.
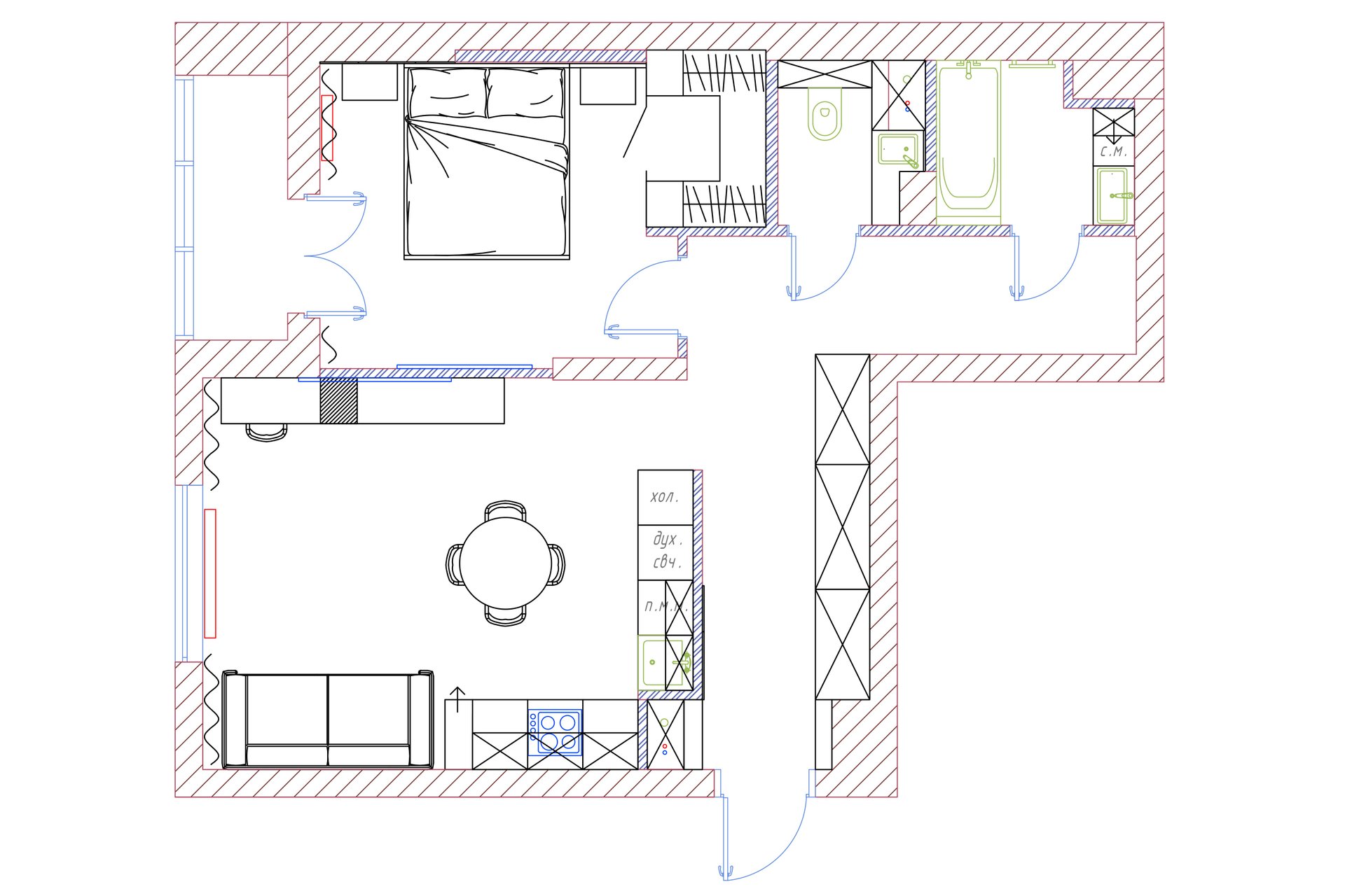
Логика планировки
Застройщик сдавал квартиру со свободной планировкой. Ограничения были связаны с наличием несущих стен, коммуникациями при входе и вентиляционной шахтой. В квартире выделили спальню, кухню-гостиную, прихожую с местом для большого шкафа, ванную и туалет.

Кухня-гостиная
«Окна квартиры выходят на северо-запад, естественного света здесь недостаточно, — рассказывают дизайнеры. — Поэтому в качестве базы мы выбрали мягкие бежевые и молочные оттенки. Графичные акценты оживляют современный монохром и добавляют динамики. Элементы графики присутствуют в ковре, картине, черных акцентах мебели. В интерьере активно используется дерево — деревянные панели хорошо сочетаются с зеркалами, которые визуально расширяют пространство. За настроение отвечают текстиль и декор в азиатском стиле. Такое пространство способно адаптироваться к настроению жильцов, при этом долго оставаясь актуальным и современным».
Стояк коммуникаций «развернули» в сторону прихожей, чтобы убрать люки из зоны готовки. Получившийся короб отделали керамогранитом под камень. «Вокруг» короба спроектировали угловой гарнитур.
У окна обустроили зону отдыха с диваном Льери от divan.by (локальный представитель бренда divan.ru в Беларуси). Кухня развернута к дивану книжным стеллажом.
Товары бренда divan.ru
Спальня
Неправильную форму спальни обыграли с помощью зеркал и асимметричного изголовья кровати. Строгие формы помещения «смягчили» с помощью фрески. В нише, предусмотренной на этапе ремонта, обустроили гардеробную.
Балкон
Балкон оформили в тех же оттенках, что и остальной интерьер. На момент съемки на балконе располагалось рабочее место. В холодное время года стол переносят в гостиную (в ТВ-зону).
Прихожая
В прихожей спроектировали распашной шкаф с отделениями для верхней одежды, хозяйственного инвентаря и бытовой техники. Фасады шкафа выкрашены в цвет стен — так габаритная мебель не загромождает пространство и не создает визуальный шум.
Ванная и туалет
Сложность при планировании ванной комнаты представлял угол вентиляционной шахты. В имеющейся нише разместили тумбу с раковиной, стиральную машину и шкаф с открытыми полками для хранения. У противоположной стены установили ванну. В туалете нашлось место для тумбы с раковиной. Оба помещения оформили одинаково: на стенах — серый керамогранит под мрамор, шкафы выполнены из ЛДСП цвета темного дерева.
Авторы проекта
Дизайнеры Юлия Поздняк (@djuliart, Design_juliart@mail.ru) и Светлана Кривицкая (@svetlanakrivitskaya, svetlana.kr98@gmail.com).
Хотите опубликовать свой проект в нашем блоге?
Пишите на roomtour@divan.ru
Форматы, жанры, на каких условиях >>










































