Основная задача этого проекта — создать «гибкое» пространство, которое будет актуальным не только для холостяка, но и для молодой семьи в будущем.

Место: г. Москва, ЖК «Байрес»
Объект: апартаменты 52 кв.м
Высота потолков: 3 м
Автор проекта: дизайнер Алина Камалеева
Стилист: Софья Паскевич
Автор фото: Наталья Градусова
Реализация: 2025 год
Что просил заказчик
- Лаконичный монохромный дизайн, который долго останется актуальным.
- Интерьер-трансформер, который при необходимости легко изменить.
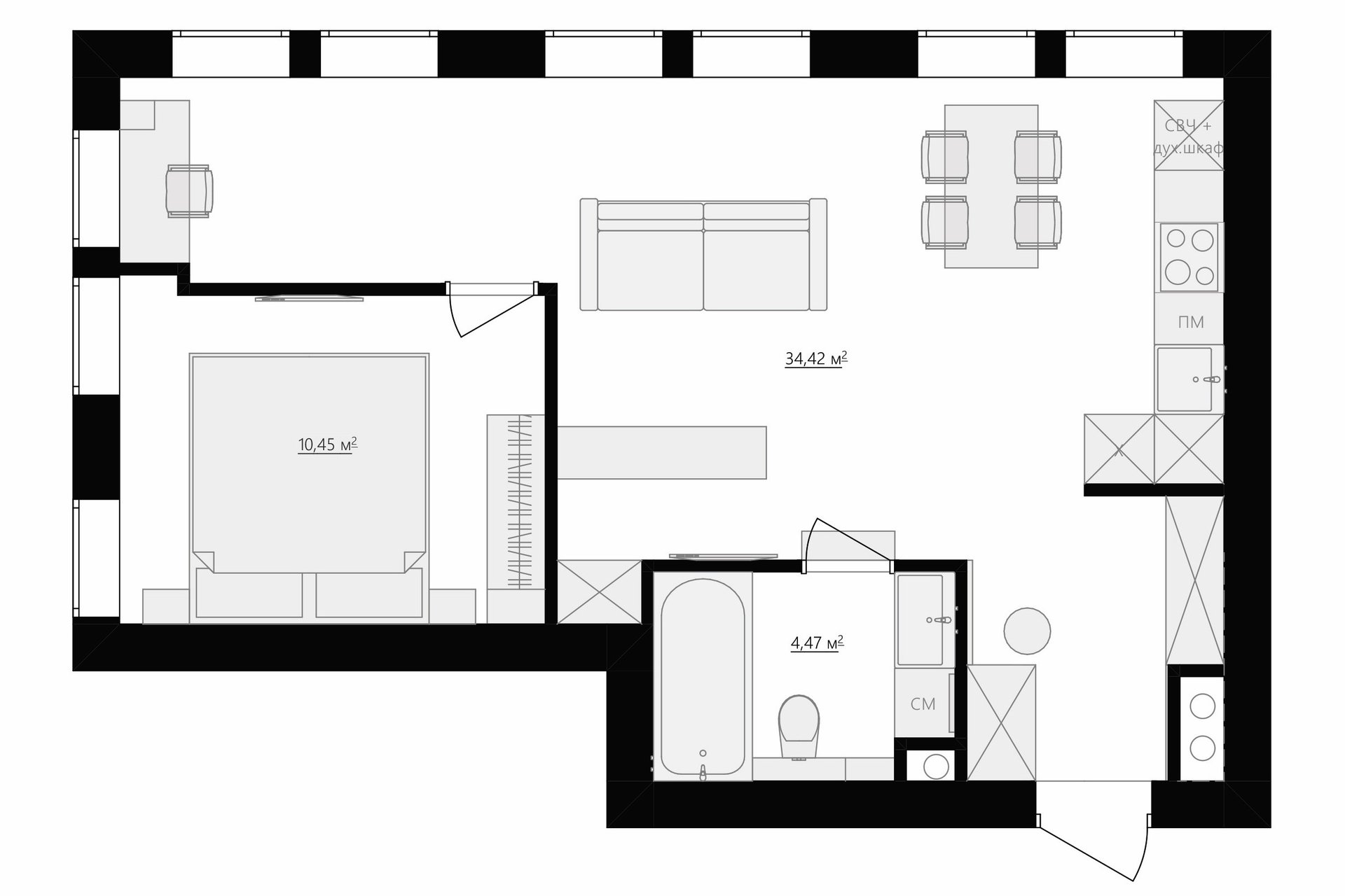
Логика планировки
Застройщик сдавал апартаменты со свободной планировкой, без перегородок. В помещении выделили кухню-гостиную, спальню, прихожую, совмещенный санузел и зону кабинета с возможностью переоборудования ее в дальнейшем в детскую комнату.
Кухня-гостиная
Стены в комнатах выкрасили в нейтральный светлый оттенок, на пол единым контуром уложили ламинат. Кухонный гарнитур встроили в подготовленную нишу. Фартук выложили керамогранитом под бетон. Чтобы визуально облегчить восприятие габаритной мебели, для части навесных шкафов выбрали белые фасады, а верхний ярус оснастили полупрозрачными стеклянными дверцами. У окна расположили обеденную зону.
Зону гостиной «выделили» потолком серого цвета и ковром на полу. Основной акцент здесь — изумрудный диван Ольен от бренда divan.ru. Диван раскладывается в полноценное спальное место. Встроенный стеллаж используется для хранения книг и декора.

Товары бренда divan.ru
Зона кабинета
Рабочее место расположили у окна, в «тупике». В будущем это пространство может стать детской. Стол с интегрированным в него стеллажом изготовили на заказ.
Спальня
Нейтральную обстановку в спальне «оживили» фактурными панелями за изголовьем. В центре внимания здесь — комфортная мягкая кровать Фостер от divan.ru. Систему хранения с прозрачными дверцами и подсветкой изготовили на заказ.
Товары бренда divan.ru
Прихожая
Входную зону выделили серым керамогранитом, потолок выдержан в том же оттенке. Вместительный шкаф высотой до потолка сливается по цвету со стеной и не выглядит громоздким.
Санузел
Стены и пол в совмещенном санузле облицевали керамогранитом под бетон. На небольшой площади удалось разместить ванну, унитаз с инсталляцией, стиральную машину и тумбу с раковиной под общей столешницей, открытые полки с подсветкой для хранения.
Автор проекта
Дизайнер Алина Камалеева (@kamaleeva_alina, телеграм-канал, ВКонтакте, сайт).
Хотите опубликовать свой проект в нашем блоге?
Пишите на roomtour@divan.ru
Форматы, жанры, на каких условиях >>







































